Aussenansicht
Aussenansicht I
Eingangsbereich
Geschäftslokal
Hofansicht I
Stiegenaufgang I
Hofhaus I
Hofhaus
Hofhaus rechts
Stiegen II

Unbefristet vermietete 2-Zimmer-Wohnung mit Veranda in der Tivoligasse!

1120 Wien | 50,36 m²

Beschreibung


Die
Liegenschaft Tivoligasse 18 befindet sich in ruhiger Wohnlage des 12. Bezirks. Das Gründerzeithaus (Baujahr ca. 1880) wurde 2005 umfassend saniert und befindet sich in sehr gepflegtem Zustand. Die ausgezeichnete Anbindung an die U4 (Meidlinger Hauptstraße) und U6 (Niederhofstraße) sowie die fußläufig erreichbaren Einkaufsmöglichkeiten entlang der Meidlinger Hauptstraße schaffen ideale Rahmenbedingungen für komfortables Wohnen.

Die Fakten:
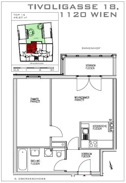
- Wohnfläche inkl Veranda ca 50m²
- Wohnküche, 1 Zimmer, Badezimmer mit Toilette, Vorraum, Veranda
- Kellerabteil ca. 2,5 m²
-
unbefristet vermietet.
- Gesamtmietzins: € 838,10
(HMZ € 529,93 + BK-Akonto € 126,40 + BK-Lift € 22,31
+ Benützungsentgelt € 25,00 + Inventarmiete € 56,00 + USt. € 78,46)

Lage-Highlights:
- U4, U6, Buslinien 7A, 9A, 10A und 63A
- Einkaufsstraße Meidlinger Hauptstraße
- Schönbrunner Schlosspark



Der Kaufpreis für diese in ausgezeichneter Lage und Infrastruktur befindliche Eigentumswohnung beträgt Euro 179.000,-.

Tipp: Die gesamte Anlage wird gerade parifiziert und abverkauft. Fragen Sie uns nach weiteren Objekten bzw. Paketangeboten!


Für weitere Informationen und einen Besichtigungstermin stehen wir Ihnen gerne zur Verfügung und freuen uns diesbezüglich über Ihre geschätzte Anfrage per Mail.

Wir möchten darauf hinweisen, dass unsere Antwort möglicherweise in Ihrem Spamordner landen könnte. Bitte kontrollieren Sie diesen, wenn Sie keine Rückmeldung auf Ihre Anfrage erhalten haben.

Wir freuen uns auf einen gemeinsamen Besichtigungstermin!

Ausstattungs­beschreibung

Vorschreibung: € 216,66
(RL € 50,50 + BK-Akonto € 151,05 + USt € 15,11)

Gesamtmietzins: € 838,10
(HMZ € 529,93 + BK-Akonto € 126,40 + BK-Lift € 22,31
+ Benützungsentgelt € 25,00 + Inventarmiete € 56,00 + USt. € 78,46)

Lage und Verkehrs­anbindung

Zentrale Lage im 12. Bezirk mit exzellenter Anbindung an öffentliche Verkehrsmittel. In unmittelbarer Nähe befinden sich Schloss Schönbrunn, der Schönbrunner Schlosspark und vielfältige Einkaufsmöglichkeiten – ideal für Stadtliebhaber und Naturgenießer.

Grundriss

Fakten

Objektnummer:
247/04368
Objekttyp:
Wohnung
Wohnfläche:
50,36 m²
Zimmer:
2
Badezimmer:
1
Toilette:
1
Baujahr:
1900/san.Altbau
Altbau:
Ja
Verfügbarkeit:
Verfügbar

Preisdetails

Kaufpreis:
179.000,00 €
Kaufpreis/m²
3.554,41 €
Preisinfos:
GrESt 3,5% + Grundbucheintragung 1,1% des Gesamtkaufpreises /Vertragserrichtung 1,5% + Barauslagen, Beglaubigungs-, ggf. Treuhandkosten bei Finanzierung +USt. (WeiKes RA) / WE-Begründungsbeitrag € 500 +USt. / Provision…
Vermittlungsprovision:
Ja
Provision:
3%

Ausstattungen

Barrierefrei
Boden:
Parkett
Fahrstuhl
Fernwärme

Energieeffizienz

HWB:
70,4 kWh/(m²*a)
HWB Klasse:
C
fGEE:
1,4
fGEE Klasse:
C

Ansprech­partner

Vivienne Spicak

Vivienne Spicak

Vertrieb