Wohnraum I
Wohnraum II
Küche
Wohnraum III
Vorraum
Toilette
Badezimmer I
Badezimmer II
Aussenansicht I
Aussenansicht II
Eingangsbereich
Flur I
Flur II
Garage
Keller
Stiegenaufgang

Unbefristet vermietet Einraumwohnung im 3. Bezirk.

1030 Wien | Wien 3., Landstraße | Wien

Beschreibung

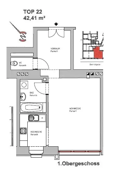
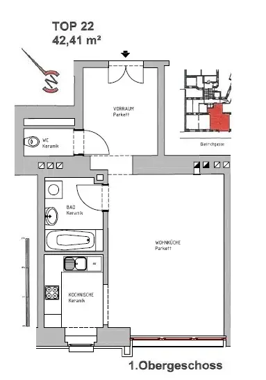
Diese ca. 42 m² große Wohnung im 1. Obergeschoss eines stilvollen Gründerzeithauses vereint charmante Architektur mit modernem Wohnkomfort - ein Rückzugsort mit Geschichte.

Helle/Hohe Räume, eine funktionale Raumaufteilung und eine ruhige, urbane Lage schaffen ein Zuhause, das Raum für echte Lebensqualität bietet.

Raum zum Leben:
- Wohnungseigentumsobjekt
- Vorraum, lichtdurchfluteter Einzelwohnraum, separierte Küche, Bad mit Badewanne, WC
- bequem mit dem Aufzug erreichbar
- Fernwärmeheizung
- seit Juni 2016 unbefristet vermietet
- Nettomietzins € 363,45

Mitten in Wien:
- Im 3. Bezirk gelegen - ruhig, zentral und lebenswert:
- Nur wenige Schritte zum Prater und Donaukanal
- Zahlreiche Cafés, Nahversorger und Einkaufsmöglichkeiten in unmittelbarer Umgebung
- Gute Anbindungen an den Nahverkehr

Der Kaufpreis für diese Eigentumswohnung mit hervorragender Infrastruktur beträgt Euro 159.000.

Tipp: Die gesamte Anlage wird gerade parifiziert und abverkauft. Fragen Sie uns nach weiteren Objekten bzw. Paketangeboten!

Wir möchten darauf hinweisen, dass unsere Antwort möglicherweise in Ihrem Spamordner landen könnte. Bitte kontrollieren Sie diesen, wenn Sie keine Rückmeldung auf Ihre Anfrage erhalten haben.

Wir freuen uns auf Ihre Anfrage und einen gemeinsamen Besichtigungstermin!

Ausstattungs­beschreibung

Vorschreibung € 622,02 (HMZ € 363,45 + BK-Akonto € 110,27 + Lift € 8,48 + Benützungsentgelt € 25,00 + Inventarmiete € 56,00 + Ust. € 58,82)

Baujahr ca.1906/Saniert ca. 2008

Da erstmalig Wohnungseigentum begründet wird, gibt es derzeit keine Reparaturrücklage.
Die zukünftige Zahlung beläuft sich auf ca. 1,06 €/m² Wohnfläche.

Lage und Verkehrs­anbindung

Die Immobilie liegt in zentraler Lage im 3. Bezirk Wiens, unweit von Stadtpark und Prater. Hervorragende Verkehrsanbindung
durch U-Bahn und Straßenbahn, sowie eine Vielzahl an Einkaufsmöglichkeiten, Restaurants und Schulen in der Umgebung.
Perfekt für urbanes Leben!

Grundriss

Fakten

Objektnummer:
247/21475
Objekttyp:
Wohnung
Wohnfläche:
42,41 m²
Zimmer:
1
Badezimmer:
1
Toilette:
1
Baujahr:
1900/san.Altbau
Altbau:
Ja
Verfügbarkeit:
Verfügbar

Preisdetails

Kaufpreis:
159.000,00 €
Kaufpreis/m²
3.749,12 €
Betriebskosten netto:
118,75 €
Sonstige Kosten netto:
81,00 €
Preisinfos:
GrESt 3,5% + Grundbucheintragung 1,1% des Gesamtkaufpreises /Vertragserrichtung 1,5% + Barauslagen, Beglaubigungs-, ggf. Treuhandkosten bei Finanzierung +USt. (WeiKes RA) / WE-Begründungsbeitrag € 500 +USt. / Provision…
Vermittlungsprovision:
Ja
Provision:
3%

Ausstattungen

Fahrstuhl
Abstellraum
Fernwärme

Energieeffizienz

HWB:
50,7 kWh/(m²*a)
HWB Klasse:
C
fGEE:
1,11
fGEE Klasse:
C

Ansprech­partner

Sebastian Auer

Sebastian Auer

Vertrieb