Wohnraum I
Wohnraum II
Wohnraum III
Schlafzimmer
Küche
Essbereich
Badezimmer
Freifläche I
Freifläche II
Vorraum
Hausansicht

Toll aufgeteilte 2-Zimmer-Wohnung im Dachgeschoss inkl. Terrasse!

1100 Wien | Wien 10., Favoriten | Wien

Beschreibung

Sichern Sie sich diese super geschnittene 2-Zimmer-Wohnung in Favoriten - nahe dem Wienerberg.

Die ca. 63 m² große Wohnung befindet sich im ausgebauten Dachgeschoss eines stilvoll sanierten Altbaus und überzeugt neben ihrer funktionalen sowie lichtdurchfluteten Raumaufteilung durch ihre Top-Lage.


Die Details:
- Wohnungseigentumsobjekt
- Vorraum, Badezimmer, WC, Zimmer, Wohnraum, Küche, Abstellraum
- Fernwärmeheizung
- Aufzug vorhanden
- Freier Mietzins

Die Lage:

- Martin Luther King Park um die Ecke
- unweit zum Wienerberg
- Zahlreiche Cafés und Einkaufsmöglichkeiten

Der Kaufpreis für diese Eigentumswohnung mit hervorragender Infrastruktur beträgt Euro 269.000.

Tipp: Die gesamte Anlage wird gerade parifiziert und abverkauft. Fragen Sie uns nach weiteren Objekten bzw. Paketangeboten!

Wir möchten darauf hinweisen, dass unsere Antwort möglicherweise in Ihrem Spamordner landen könnte. Bitte kontrollieren Sie diesen, wenn Sie keine Rückmeldung auf Ihre Anfrage erhalten haben.

Ausstattungs­beschreibung

Vorschreibung WEG € 265,84 (BK € 172,61 + Rücklage € 75,97 + Ust. € 17,26)

Baujahr ca.1900/Saniert ca. 2004

Da erstmalig Wohnungseigentum begründet wurde, befindet sich die Rücklage im Aufbau.

Rücklage per 28.01.2026 € 11.226,87

Lage und Verkehrs­anbindung

Genussmenschen kommen in den vielen Cafés und Restaurants auf ihre Kosten. Sportbegeisterte finden in der Boulderbar, dem Golfclub oder dem Fitnesscenter ideale Möglichkeiten. Perfekte Anbindung an Straßenbahnen/Busse sowie Erholungsmöglichkeiten im Martin-Luther-King-Park und Wienerberg.

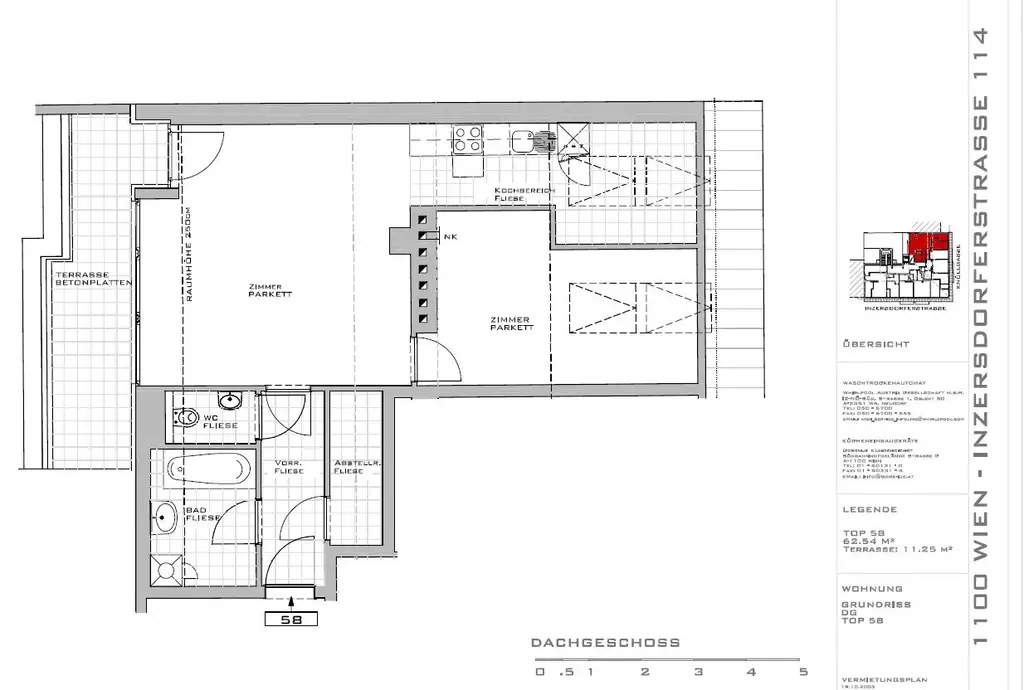
Grundriss

Fakten

Objektnummer:
247/21981
Objekttyp:
Wohnung
Wohnfläche:
63 m²
Zimmer:
2
Badezimmer:
1
Toilette:
1
Baujahr:
1900
Verfügbarkeit:
Verfügbar

Preisdetails

Kaufpreis:
269.000,00 €
Kaufpreis/m²
4.269,84 €
Betriebskosten netto:
172,61 €
Sonstige Kosten netto:
75,97 €
Preisinfos:
GrESt 3,5% + Grundbucheintragung 1,1% des Gesamtkaufpreises / Vertragserrichtung 1,5% + Barauslagen, Beglaubigungs-, ggf. Treuhandkosten bei Finanzierung +USt. (WeiKes RA) / WE-Begründungsbeitrag € 500 +USt. / Provisio…
Vermittlungsprovision:
Ja
Provision:
3%

Ausstattungen

Fahrstuhl
Abstellraum
Fernwärme

Energieeffizienz

HWB:
95 kWh/(m²*a)
HWB Klasse:
C
fGEE:
1,41
fGEE Klasse:
C

Ansprech­partner

Sebastian Auer

Sebastian Auer

Vertrieb