Wohnraum I
Wohnraum II
Zimmer I
Zimmer II
Badezimmer
Küche
Vorraum I
Vorraum II
Eingangsbereich
Flur I
Flur II
Stiegenaufgang
Keller
Garage
Aussenansicht I
Aussenansicht II

Super aufgeteilte 2 Zimmer Wohnung - unbefristet vermietet!

1030 Wien | Wien 3., Landstraße | Wien

Beschreibung

Diese ca. 62 m² große Wohnung im 1. Obergeschoss eines stilvollen Gründerzeithauses vereint charmante Architektur mit modernem Wohnkomfort - ein Rückzugsort mit Geschichte.

Helle/Hohe Räume, eine funktionale Raumaufteilung und eine ruhige, urbane Lage schaffen ein Zuhause, das Raum für echte Lebensqualität bietet.

Raum zum Leben:
- Wohnungseigentumsobjekt
- Vorraum, lichtdurchfluteter Wohnraum, Schlafzimmer, separate Küche, Bad Badewanne, Abstellraum, WC
- bequem mit dem Aufzug erreichbar
- Fernwärmeheizung
- seit Dezember 2023 unbefristet vermietet
- Nettomietzins € 531,48

Mitten in Wien:
- Im 3. Bezirk gelegen - ruhig, zentral und lebenswert:
- Nur wenige Schritte zum Prater und Donaukanal
- Zahlreiche Cafés, Nahversorger und Einkaufsmöglichkeiten in unmittelbarer Umgebung
- Gute Anbindungen an den Nahverkehr

Der Kaufpreis für diese Eigentumswohnung mit hervorragender Infrastruktur beträgt Euro 199.000.

Tipp: Die gesamte Anlage wird gerade parifiziert und abverkauft. Fragen Sie uns nach weiteren Objekten bzw. Paketangeboten!

Wir möchten darauf hinweisen, dass unsere Antwort möglicherweise in Ihrem Spamordner landen könnte. Bitte kontrollieren Sie diesen, wenn Sie keine Rückmeldung auf Ihre Anfrage erhalten haben.

Wir freuen uns auf Ihre Anfrage und einen gemeinsamen Besichtigungstermin!

Ausstattungs­beschreibung

Vorschreibung € 774,98 (HMZ € 531,48 + BK-Akonto € 160,68 + Lift € 12,36 + Ust. € 70,46)

Baujahr ca.1906/Saniert ca. 2008

Da erstmalig Wohnungseigentum begründet wird, gibt es derzeit keine Reparaturrücklage.
Die zukünftige Zahlung beläuft sich auf ca. 1,06 €/m² Wohnfläche.

Lage und Verkehrs­anbindung

Die zahlreichen Cafés und Restaurants laden zum Verweilen ein. Sportfans finden vielfältige Angebote in der Nähe, öffentliche Verkehrsmittel sind schnell erreichbar und grüne Erholungsflächen wie der Prater und die Donauinsel sorgen für Ausgleich im Alltag.

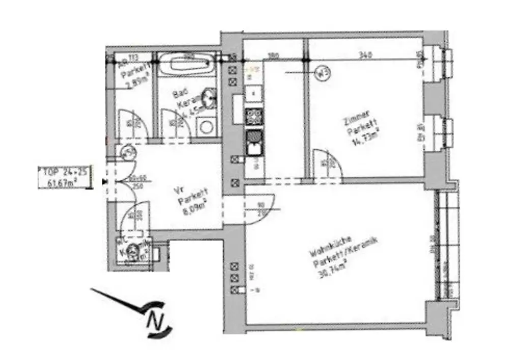
Grundriss

Fakten

Objektnummer:
247/21478
Objekttyp:
Wohnung
Wohnfläche:
62 m²
Zimmer:
2
Badezimmer:
1
Toilette:
1
Baujahr:
1900/san.Altbau
Altbau:
Ja
Verfügbarkeit:
Verfügbar

Preisdetails

Kaufpreis:
199.000,00 €
Kaufpreis/m²
3.209,68 €
Betriebskosten netto:
160,68 €
Sonstige Kosten netto:
12,36 €
Preisinfos:
GrESt 3,5% + Grundbucheintragung 1,1% des Gesamtkaufpreises /Vertragserrichtung 1,5% + Barauslagen, Beglaubigungs-, ggf. Treuhandkosten bei Finanzierung +USt. (WeiKes RA) / WE-Begründungsbeitrag € 500 +USt. / Provision…
Vermittlungsprovision:
Ja
Provision:
3%

Ausstattungen

Fahrstuhl
Abstellraum
Fernwärme

Energieeffizienz

HWB:
50,7 kWh/(m²*a)
HWB Klasse:
C
fGEE:
1,11
fGEE Klasse:
C

Ansprech­partner

Sebastian Auer

Sebastian Auer

Vertrieb