Wohnbereich I
Wohnbereich II
Wohnbereich III
Schlafbereich I
Schlafbereich II
Küche
Vorraum
Badezimmer

Super aufgeteilte 1,5 Zimmer Wohnung am Rennweg!

1030 Wien | Wien 3., Landstraße | Wien

Beschreibung


Zur Anmietung nach Absprache steht diese perfekt aufgeteilte 1,5-Zimmer-Wohnung im 3. Bezirk am Rennweg, für Sie bereit.

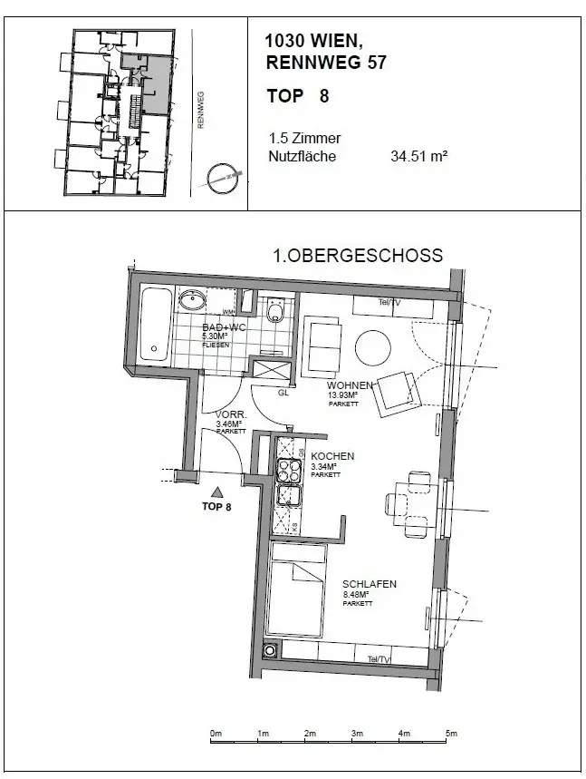
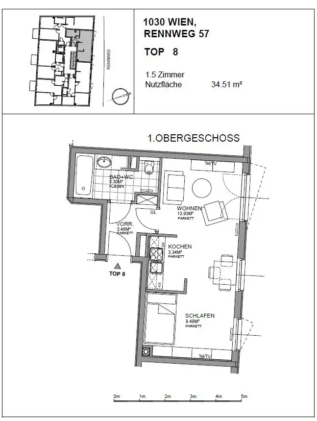
Die ca. 35 m² große Wohnung befindet sich im 1. Obergeschoss eines gepflegten Neubaus und gliedert sich in einen einen Vorraum, ein Wohnraum mit Küchennische, einen Schlafbereich sowie ein Badezimmer mit Toilette.

Einige Highlights:

- hervorragender Grundriss
- voll ausgestattete Küche
- separierter Schlafbereich
- Badezimmer mit Badewanne und Waschmaschinenanschluss
- optimale öffentliche Anbindungen (S-Bahn, Buslinie 77A und Straßenbahnlinien 1, 62, 71 und O)
- Restaurants, Cafés und Einkaufsmöglichkeiten
 in unmittelbarer Nähe
- auf Wunsch kann ein Großteil der Möblierung abgelöst werden

Selbstverständlich stehen sowohl Fernseh- als auch Internetanschluss sowie Lift und ein Kellerabteil zur Verfügung.

Der Mietzins beläuft sich auf Euro 643,51 inkl. Betriebskosten und Umsatzsteuer.

Die Heiz- und Warmwasserversorgung erfolgt per Gaszentralheizung. Die Kosten dafür betragen:

- Heizung: Euro 26,92 inkl. USt.
- Warmwasser: Euro 15,18 inkl. USt.

Somit beläuft sich die monatliche Gesamtbelastung dieser Wohnung auf Euro 685,61 inkl. Betriebskosten, Heizung, Warmwasser und Umsatzsteuer.

Per Telefon werden keine Termine vergeben! Wir bitten Sie, ausschließlich das Kontaktformular der Immobilienplattformen für Anfragen zu nutzen. Nach Erhalt unserer E-Mail antworten Sie bitte auf dieses E-Mail mit Ihrem Besichtigungswunsch.

Wir möchten darauf hinweisen, dass unsere Antwort möglicherweise in Ihrem Spamordner landen könnte.

Wir freuen uns auf Ihre Anfrage und einen gemeinsamen Besichtigungstermin!

Ausstattungs­beschreibung

Mietdauer: 5 Jahre befristet,
Mindestmietdauer: 1 Jahr Kündigungsverzicht und
3 Monate Kündigungsfrist

Lage und Verkehrs­anbindung

Zentrale Lage im 3. Bezirk von Wien mit hervorragender Infrastruktur. Nähe zu Parks, Cafés und öffentlichen
Verkehrsmitteln. Kurze Wege zu Innenstadt, Universität und Einkaufsmöglichkeiten machen den Standort besonders
attraktiv und lebendig.

Grundriss

Fakten

Objektnummer:
247/00921
Objekttyp:
Wohnung
Wohnfläche:
34 m²
Zimmer:
1,5
Badezimmer:
1
Toilette:
1
Stockwerk:
1
Baujahr:
2006/Neubau
Neubau:
Ja
Verfügbarkeit:
Verfügbar

Preisdetails

Gesamtmiete:
643,51 €
Nettomiete:
492,52 €
Betriebskosten netto:
92,49 €
Umsatzsteuer:
58,50 €
Preisinfos:
Abwicklung und Durchführung Mietvertrag: € 375,-
Kaution:
2.100,00 €

Ausstattungen

Fahrstuhl

Energieeffizienz

HWB:
45,2 kWh/(m²*a)
HWB Klasse:
B
fGEE:
1,19
fGEE Klasse:
C

Ansprech­partner

Sebastian Auer

Sebastian Auer

Vertrieb
Mietanbot abgeben