Haus II
CIMG2233
CIMG2234
Haus IV
Stiegenhaus V
CIMG2231
CIMG2232
CIMG2222
CIMG2225
CIMG2235
CIMG2230
CIMG2226
Innenhof
Lift

Stilvolle Dachgeschoss-Maisonnette mit Terrasse Unbefristet vermietet - Rendite 3,85 %

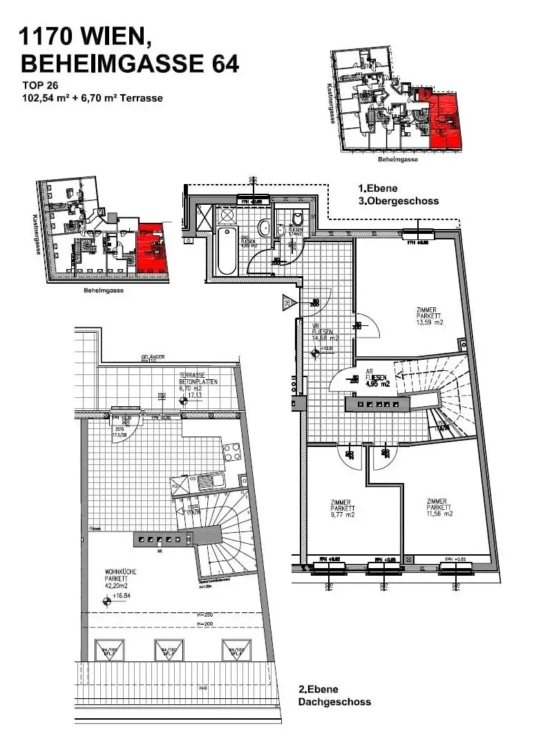
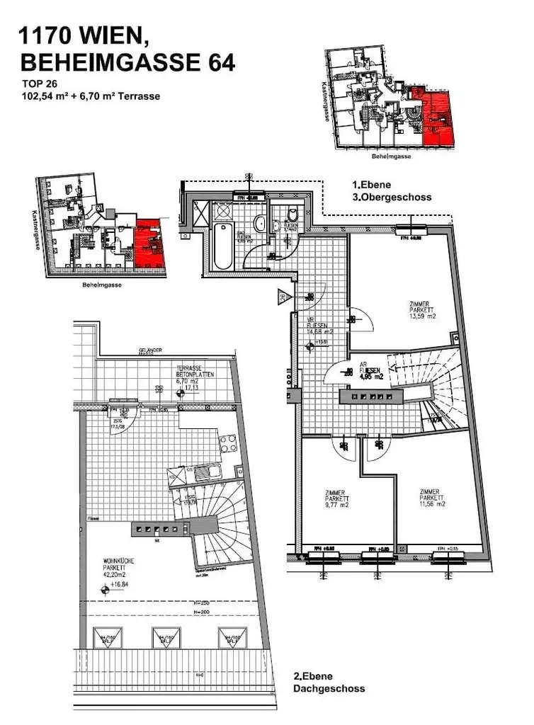
1170 Wien | 102,54 m²
Haus II
CIMG2233
CIMG2234
Haus IV
Stiegenhaus V
CIMG2231
CIMG2232
CIMG2222
CIMG2225
CIMG2235
CIMG2230
CIMG2226
Innenhof
Lift

Beschreibung


In attraktiver Lage des 17. Bezirks gelangen in der Beheimgasse mehrere Wohnungen zum Einzelabverkauf. Das Angebot umfasst überwiegend unbefristet und befristet vermietete sowie einige leerstehende Einheiten mit Wohnflächen von ca. 25 m² bis 112 m²; Dachgeschosswohnungen verfügen über Freiflächen
.

Die ca. 102 m² große 4-Zimmer-Terrassenwohnung (Vorraum, Abstellraum, Wohnküche, 3 Zimmer, Bad mit Badewanne, Toilette) befindet sich im Dachgeschoss eines gepflegten Gründerzeithauses, das 2008 saniert und ausgebaut wurde und ist
unbefristet vermietet.
Sie bietet kurz-, mittel- und langfristig eine absolute Vorteilslage.

Die Highlights:

- Maisonnette
- hervorragende Raumaufteilung
- Dachgeschoss-Zubau 2008 (dadurch sehr guter Zustand)
- ca. 7 m² Terrasse (ostseitig ausgeerichtet)
- Aufzug vorhanden, barrierefrei erreichbar
- Kellerabteil, ca. 2 m²
- Kinderwagen- und Fahrradraum
- Fernwärmeheizung
- unbefristet vermietet
(keine Eigennutzung bis zur Kündigung des Mieters möglich; bei einem neuen Mietverhältnis kann der freie Mietzins
vereinbart werden; Mieterin Jahrgang 1975/1971)
- derzeit monatliche Mieteinnahmen netto € 1.342,85 inkl. Inventarmiete (Betriebskosten nicht inkludiert)

Lage-Highlights:

- Grün & Erholung: Christine-Nöstlinger-Park direkt ums Eck – ideal für Spaziergänge, Sport und Freizeit
- Öffentliche Anbindung: Straßenbahnlinien 43 und 9 in Gehweite, schnelle Verbindung ins Stadtzentrum
- Nahversorgung & Alltag: Supermärkte, Bäckereien, Apotheken, Cafés und Restaurants zu Fuß erreichbar
- Lokale Atmosphäre: Ruhige Wohnstraße mit typischem 17. Bezirk-Charme und lebendiger Nachbarschaft

Der Kaufpreis für diese in ausgezeichneter Lage und Infrastruktur befindliche Eigentumswohnung beträgt Euro 419.000,-.

Vereinbaren Sie noch heute einen Besichtigungstermin und lassen Sie sich von dieser besonderen Immobilie verzaubern.
Diesbezüglich freuen wir uns über Ihre geschätzte Anfrage per Mail.

Tipp: Die gesamte Anlage wird gerade parifiziert und abverkauft. Fragen Sie uns nach weiteren Objekten bzw. Paketangeboten!

Wir möchten darauf hinweisen, dass unsere Antwort möglicherweise in Ihrem Spamordner landen könnte. Bitte kontrollieren Sie diesen, wenn Sie keine Rückmeldung auf Ihre Anfrage erhalten haben.

Wir freuen uns auf Ihre Anfrage und einen gemeinsamen Besichtigungstermin!


Ausstattungs­beschreibung

Vorschreibung € 1.866,28 (HMZ € 1.342,85 + BK-Akonto € 317,87 + Lift € 35,89 + Ust. € 169,67)

Baujahr Grundsubstanz ca. 1900 / Ausbau ca. 2008

Da erstmalig Wohnungseigentum begründet wird, gibt es derzeit keine Reparaturrücklage. Die zukünftige Zahlung beläuft sich auf ca. 1,13 €/m² Wohnfläche.

Lage und Verkehrs­anbindung

Ruhige Wohngegend im 17. Bezirk mit hervorragender Infrastruktur. Öffentliche Verkehrsmittel fußläufig erreichbar, das Stadtzentrum schnell angebunden. Vielfältige Einkaufsmöglichkeiten, Cafés und nahe Grünzonen machen die Lage besonders attraktiv.

Grundriss

Fakten

Objektnummer:
247/21994
Objekttyp:
Wohnung
Terrasse:
1
Terrassenfläche:
6,7 m²
Wohnfläche:
102,54 m²
Zimmer:
4
Badezimmer:
1
Toilette:
1
Baujahr:
2008/DG-Zubau
Neubau:
Ja
Verfügbarkeit:
Verfügbar

Preisdetails

Kaufpreis:
419.000,00 €
Kaufpreis/m²
4.086,21 €
Preisinfos:
GrESt 3,5% + Grundbucheintragung 1,1% des Gesamtkaufpreises / Vertragserrichtung 1,5% + Barauslagen, Beglaubigungs-, ggf. Treuhandkosten bei Finanzierung +USt. (WeiKes RA) / WE-Begründungsbeitrag € 500 +USt. / Provisio…
Vermittlungsprovision:
Ja
Provision:
3%

Ausstattungen

Barrierefrei
Fahrstuhl
Abstellraum
Fernwärme

Energieeffizienz

HWB:
40,1 kWh/(m²*a)
HWB Klasse:
B
fGEE:
1,05
fGEE Klasse:
C

Ansprech­partner

Ruschitzka-Schilhorn Marion

Ruschitzka-Schilhorn Marion

Vertrieb