Außenansicht
Wohnzimmer
Wohnzimmer I
Schalfzimmer
Schalfzimmer I
Badezimmer
Küche
Balkon
Küche I
Vorraum

Schöne 2-Zimmer-Wohnung mit Terrasse!

1170 Wien | Pezzlgasse | 47,43 m²

Beschreibung

Zur Anmietung nach Absprache steht diese super aufgeteilte 2-Zimmer-Wohnung mit Terrasse in der Pezzlgasse im 17. Bezirk, für Sie bereit.

Bitte zu beachten - die Wohnung ist noch bewohnt - daher müssen wir uns mit Terminen ein wenig gedulden.

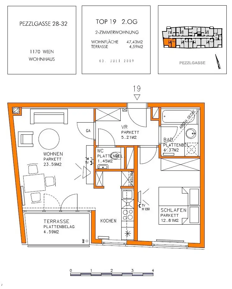
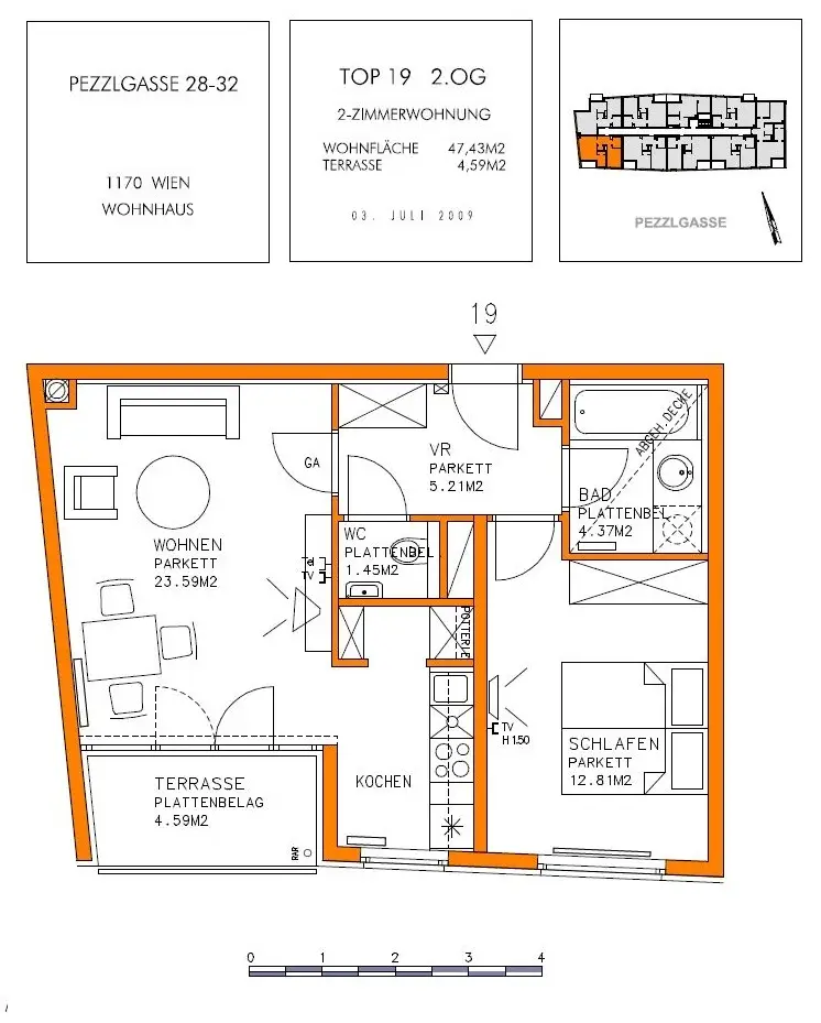
Die ca. 47 m² große Wohnung im 2. Obergeschoss eines gepflegten Neubaus umfasst einen Vorraum, eine Wohnküche, ein Schlafzimmer, ein Badezimmer und eine separate Toilette.

Einige Highlights:

- hervorragender Grundriss
- ca. 4 m² großer Terrasse
- voll ausgestattete Küche
- Badezimmer mit Badewanne und Waschmaschinenanschluss
- optimale öffentliche Anbindungen (Straßenbahnlinien 9 und 43)
- Restaurants, Cafés und Einkaufsmöglichkeiten
 in unmittelbarer Nähe

Selbstverständlich stehen sowohl Fernseh- als auch Internetanschluss sowie Lift und ein Kellerabteil zur Verfügung.

Der Mietzins beläuft sich auf Euro 944,88 inkl. Betriebskosten und Umsatzsteuer.

Die Heiz- und Warmwasserversorgung erfolgt per Gaszentralheizung. Die Kosten dafür betragen:
- Heizung: Euro 35,86 inkl. USt.
- Warmwasser: Euro 18,26 inkl. USt.

Somit beläuft sich die monatliche Gesamtbelastung dieser Wohnung auf Euro 999,- inkl. Betriebskosten, Heizung, Warmwasser und Umsatzsteuer.

Per Telefon werden keine Termine vergeben! Wir bitten Sie, ausschließlich das Kontaktformular der Immobilienplattformen für Anfragen zu nutzen. Nach Erhalt unserer E-Mail antworten Sie bitte auf dieses E-Mail mit Ihrem Besichtigungswunsch.

Wir möchten darauf hinweisen, dass unsere Antwort möglicherweise in Ihrem Spamordner landen könnte.

Wir freuen uns auf Ihre Anfrage und einen gemeinsamen Besichtigungstermin!


Ausstattungs­beschreibung

Mietdauer: 5 Jahre befristet,
Mindestmietdauer: 1 Jahr Kündigungsverzicht
und 3 Monate Kündigungsfrist

Lage und Verkehrs­anbindung

Die Wohnung liegt in zentraler Lage im 17. Bezirk, nahe der U6 und dem Elterleinplatz. In der Umgebung finden sich
zahlreiche Einkaufsmöglichkeiten, Cafés und Parks. Hervorragende Anbindung an öffentliche Verkehrsmittel und ein
vielfältiges Freizeitangebot zeichnen die Gegend aus.

Grundriss

Fakten

Objektnummer:
247/22077
Objekttyp:
Wohnung
Terrasse:
1
Terrassenfläche:
4,59 m²
Wohnfläche:
47,43 m²
Zimmer:
2
Badezimmer:
1
Toilette:
1
Stockwerk:
2
Baujahr:
2009/Neubau
Neubau:
Ja
Verfügbarkeit:
Verfügbar

Preisdetails

Gesamtmiete:
944,88 €
Nettomiete:
746,72 €
Betriebskosten netto:
112,26 €
Umsatzsteuer:
85,90 €
Preisinfos:
Abwicklung und Durchführung Mietvertrag: € 375,-
Kaution:
3.000,00 €

Ausstattungen

Fahrstuhl

Energieeffizienz

HWB:
41,91 kWh/(m²*a)
HWB Klasse:
B
fGEE:
0,85
fGEE Klasse:
A

Ansprech­partner

Tina Rivic

Tina Rivic

Vertrieb
Mietanbot abgeben