Wohnraum
Wohnraum I
Küche
Aussenansicht I
Aussenansicht II
Flur
Stiegenaufgang
Eingangsbereich
Garage
Flur III
Keller

Sanierungsbedürftige Einraumwohnung - unweit zum Prater!

1030 Wien | Wien 3., Landstraße | Wien

Beschreibung

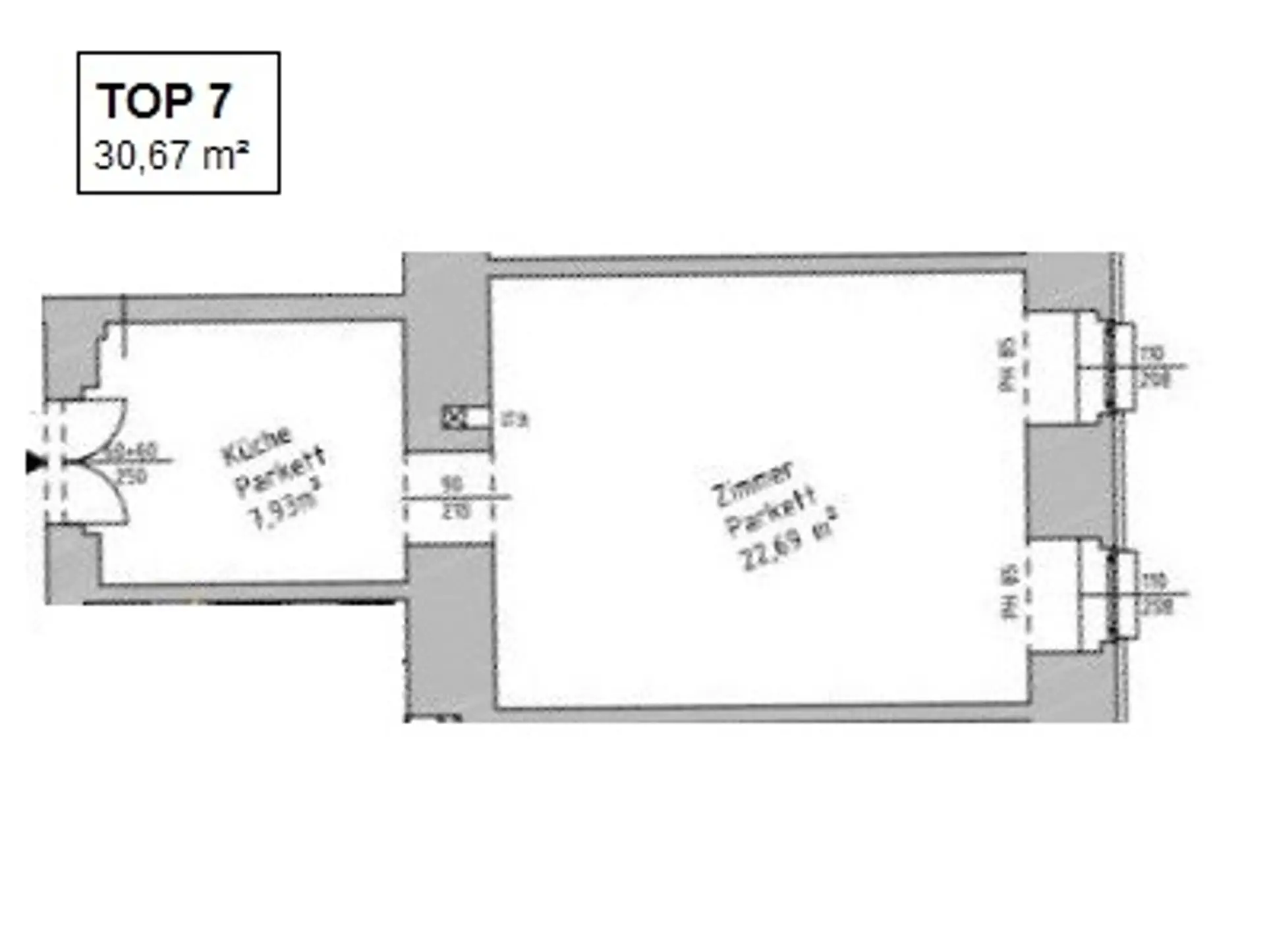
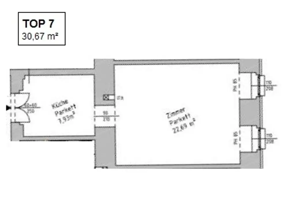
Diese ca. 29 m² große Wohnung befindet sich im Erdgeschoss eines stilvollen Gründerzeithauses und bietet eine ideale Grundlage zur individuellen Sanierung.

Raum zum Leben:
- Wohnungseigentumsobjekt
- Küche, Zimmer, Gang-WC
- Kellerabteil
- Fernwärmeheizung im Haus, Wohnung ist jedoch nicht angeschlossen

Mitten in Wien:
- Im 3. Bezirk gelegen - ruhig, zentral und lebenswert:
- Nur wenige Schritte zum Prater und Donaukanal
- Zahlreiche Cafés, Nahversorger und Einkaufsmöglichkeiten in unmittelbarer Umgebung
- Gute Anbindungen an den Nahverkehr

Der Kaufpreis für diese Eigentumswohnung mit hervorragender Infrastruktur beträgt Euro 99.000,00

Tipp: Die gesamte Anlage wird gerade parifiziert und abverkauft. Fragen Sie uns nach weiteren Objekten bzw. Paketangeboten!

Wir möchten darauf hinweisen, dass unsere Antwort möglicherweise in Ihrem Spamordner landen könnte. Bitte kontrollieren Sie diesen, wenn Sie keine Rückmeldung auf Ihre Anfrage erhalten haben.

Wir freuen uns auf Ihre Anfrage und einen gemeinsamen Besichtigungstermin!

Ausstattungs­beschreibung

Vorschreibung WEG € 112,70 ( BK-Akonto € 193,49 + Rücklage € 23,10 + Ust. € 8,15)

Baujahr ca.1906/Saniert ca. 2008

Da erstmalig Wohnungseigentum begründet wurde, gibt es derzeit keine Reparaturrücklage.

Lage und Verkehrs­anbindung

Die Immobilie liegt in zentraler Lage im 3. Bezirk Wiens, unweit von Stadtpark und Prater. Hervorragende Verkehrsanbindung
durch U-Bahn und Straßenbahn, sowie eine Vielzahl an Einkaufsmöglichkeiten, Restaurants und Schulen in der Umgebung.
Perfekt für urbanes Leben!

Grundriss

Fakten

Objektnummer:
247/21468
Objekttyp:
Wohnung
Wohnfläche:
29,09 m²
Zimmer:
1
Badezimmer:
1
Toilette:
1
Baujahr:
1900/san.Altbau
Altbau:
Ja
Verfügbarkeit:
Verfügbar

Preisdetails

Kaufpreis:
99.000,00 €
Kaufpreis/m²
3.403,23 €
Betriebskosten netto:
81,45 €
Sonstige Kosten netto:
23,10 €
Preisinfos:
GrESt 3,5% + Grundbucheintragung 1,1% des Gesamtkaufpreises /Vertragserrichtung 1,5% + Barauslagen, Beglaubigungs-, ggf. Treuhandkosten bei Finanzierung +USt. (WeiKes RA) / WE-Begründungsbeitrag € 500 +USt. / Provision…
Vermittlungsprovision:
Ja
Provision:
3%

Ausstattungen

Fahrstuhl

Ansprech­partner

Sebastian Auer

Sebastian Auer

Vertrieb