Wohnraum I
Wohnraum
Wohnraum II
Wohnraum III
Küche
Zimmer
Loggia
Bad
Zimmer I
Aussicht
Vorraum
Hausansicht
Aussenansicht
Header

Neubauwohnung mit 2 Zimmern und Loggia - im Zentrum von St. Pölten

3100 St. Pölten | Sankt Pölten (Stadt) | Niederösterreich

Beschreibung


Zum Bezug nach Absprache steht in einer Seitengasse in zentraler Lage von St. Pölten diese helle 2-Zimmer-Neubauwohnung mit einer Wohnfläche von ca. 50 m² und einer Loggia, für Sie bereit.

Bitte zu beachten - die Wohnung ist noch bewohnt - daher müssen wir uns mit Terminen ein wenig gedulden.
Termine erst ab Anfang November möglich.


Im 2. Obergeschoss (Aufzug vorhanden) erwartet Sie die Immobilie mit einer hochwertigen Ausstattung und einer durchdachten Raumaufteilung.

Die Wohnung gliedert sich in einen Vorraum, ein Anstellraum,eine großzügige Wohnküche, ein Schlafzimmer, ein Schrankraum, ein Badezimmer und eine separate Toilette.

Einige Highlights:

- gut durchdachte Raumaufteilung
- moderne, voll ausgestattete Küche
- Loggia mit ca. 7 m² (südseitig ausgerichtet)
- Badezimmer ist mit Badewanne und Waschmaschinenanschluss
- gute öffentliche Anbindungen (u.a. Buslinien: 480, 470 und 475)
- Restaurants, Cafés und Einkaufsmöglichkeiten in unmittelbarer Nähe

Selbstverständlich stehen sowohl Fernseh- als auch Telefonanschluss sowie ein Kellerabteil zur Verfügung.

Der monatliche Gesamtmietzins dieser Wohnung beläuft sich auf Euro 784,84 inklusive Betriebskosten und Umsatzsteuer.
Vertragsgebühren und Akontozahlungen(z.B. Betriebskosten) können sich per Jahreswechsel ändern.

Die Heiz- und Warmwasserversorgung erfolgt per Fernwärmeheizung und ist im Mietpreis nicht inkludiert.

Per Telefon werden keine Termine vergeben! Wir bitten Sie, ausschließlich das Kontaktformular der Immobilienplattformen für Anfragen zu nutzen. Nach Erhalt unserer E-Mail antworten Sie bitte auf dieses E-Mail mit Ihrem Besichtigungswunsch.

Wir möchten darauf hinweisen, dass unsere Antwort möglicherweise in Ihrem Spamordner landen könnte.

Wir freuen uns auf Ihre Anfrage und einen gemeinsamen Besichtigungstermin!

Ausstattungs­beschreibung

Mietdauer: 5 Jahre befristet mit Aussicht auf Verlängerung,
Mindestmietdauer: 1 Jahr Kündigungsverzicht, 3 Monate Kündigungsfrist

Lage und Verkehrs­anbindung

Das Gebäude liegt im Herzen von St. Pölten und bietet eine hervorragende Anbindung an öffentliche Verkehrsmittel sowie eine Vielzahl von Geschäften und Restaurants in unmittelbarer Nähe. Ideal für jene, die urbanes Flair schätzen.

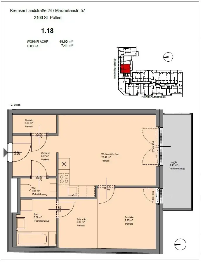
Grundriss

Fakten

Objektnummer:
247/02372
Objekttyp:
Wohnung
Loggia:
1
Loggia Fläche:
7,41 m²
Wohnfläche:
49,9 m²
Zimmer:
2
Badezimmer:
1
Toilette:
1
Stockwerk:
2
Baujahr:
2017/Neubau
Neubau:
Ja
Verfügbarkeit:
Verfügbar

Preisdetails

Gesamtmiete:
784,84 €
Nettomiete:
548,44 €
Betriebskosten netto:
165,05 €
Umsatzsteuer:
71,35 €
Kaution:
2.400,00 €

Ausstattungen

Barrierefrei
Boden:
Parkett
Fahrstuhl
Abstellraum
Fußbodenheizung

Energieeffizienz

HWB:
32,01 kWh/(m²*a)
HWB Klasse:
B
fGEE:
0,83
fGEE Klasse:
A

Ansprech­partner

Vivienne Spicak

Vivienne Spicak

Vertrieb
Mietanbot abgeben