Außenansicht
Küche
Wohnraum
Wohnraum I
Terrasse
Badezimmer
Balkon
Badezimmer I
#terrasse I
Küche I

Modernes Einzimmer-Loft mit Freifläche in Ruhelage!

1170 Wien | 31,66 m²

Beschreibung

Zum Bezug nach Absprache steht diese schöne 1-Zimmer-Wohnung mit Balkon im 17. Bezirk in der Pezzlgasse, für Sie bereit.

Bitte beachten: Die Fotos aus dem Archiv wurden aus Rücksicht auf die derzeitigen Mieter verwendet.
Besichtigungstermine sind nur nach Freigabe durch den aktuellen Mieter möglich – wir bitten um etwas Geduld.

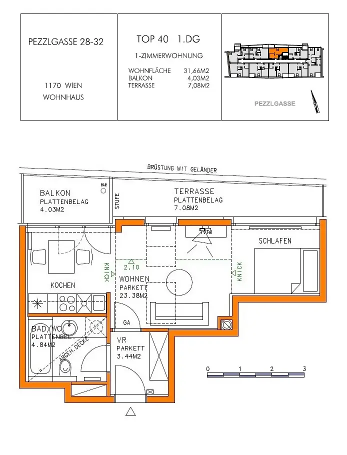
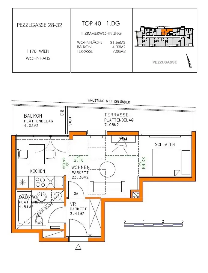
Die ca. 32 m² große Wohnung befindet sich im Dachgeschoss eines schönen Neubauhauses
und gliedert sich in einen Vorraum, ein Einzelwohnraum mit separierter Küchennische und ein Badezimmer mit Toilette.

Einige Highlights:

- hervorragender Grundriss
- ca. 11 m² große Terrasse (nordostseitig)
- Badezimmer mit Badewanne, Toilette und Waschmaschinenanschluss
- optimale öffentliche Anbindungen (Straßenbahnlinien 9 und 43)
- Restaurants, Cafés und Einkaufsmöglichkeiten in unmittelbarer Nähe

Selbstverständlich stehen sowohl Fernseh- als auch Internetanschluss sowie Lift und ein Kellerabteil zur Verfügung.

Der Mietzins beläuft sich auf Euro 698,87 inkl. Betriebskosten und BK-Akonto Müll und Umsatzsteuer.

Die Heiz- und Warmwasserversorgung erfolgt per Gaszentralheizung. Die Kosten dafür betragen:

- Heizung: Euro 23,94 inkl. USt.
- Warmwasser: Euro 12,19 inkl. USt.

Somit beläuft sich die monatliche Gesamtbelastung dieser Wohnung auf Euro 735,- inkl. Betriebskosten, Heizung, Warmwasser und Umsatzsteuer.

Wir möchten darauf hinweisen, dass unsere Antwort möglicherweise in Ihrem Spamordner landen könnte.

Per Telefon werden keine Termine vergeben! Wir bitten Sie, ausschließlich das Kontaktformular der Immobilienplattformen für Anfragen zu nutzen. Nach Erhalt unserer E-Mail antworten Sie bitte auf dieses E-Mail mit Ihrem Besichtigungswunsch.

Wir freuen uns auf Ihre Anfrage und einen gemeinsamen Besichtigungstermin!

Ausstattungs­beschreibung

Mietdauer: 5 Jahre befristet,
Mindestmietdauer: 1 Jahr Kündigungsverzicht
und 3 Monate Kündigungsfrist

Lage und Verkehrs­anbindung

Die Wohnung befindet sich in einer erstklassigen Lage, in einem lebendigen Stadtteil, umgeben von Cafés, Restaurants und
Einkaufsmöglichkeiten. Öffentliche Verkehrsmittel sind fußläufig erreichbar, Grünflächen und Freizeitangebote sorgen für
hohe Lebensqualität.

Grundriss

Fakten

Objektnummer:
247/00982
Objekttyp:
Wohnung
Balkon:
1
Terrasse:
1
Balkonfläche:
4,03 m²
Terrassenfläche:
7,08 m²
Wohnfläche:
31,66 m²
Zimmer:
1
Badezimmer:
1
Toilette:
1
Baujahr:
2009 /Neubau
Neubau:
Ja
Verfügbarkeit:
Verfügbar

Preisdetails

Gesamtmiete:
698,87 €
Nettomiete:
554,86 €
Betriebskosten netto:
80,48 €
Umsatzsteuer:
63,53 €
Preisinfos:
Abwicklung und Durchführung Mietvertrag: € 375,-
Kaution:
2.250,00 €

Ausstattungen

Fahrstuhl

Energieeffizienz

HWB:
41,91 kWh/(m²*a)
HWB Klasse:
B
fGEE:
0,86
fGEE Klasse:
B

Ansprech­partner

Tina Rivic

Tina Rivic

Vertrieb
Mietanbot abgeben