Wohnbereich
Küche I
Terrasse
Küche II
Zimmer I
Zimmer
Schlafzimmer
Schlafzimmer 2 I
Schlafzimmer 2
Schlafzimmer I
Bad
Vorraum I
Terrasse I
Ausblick I
Ausblick II
Dach
Hausansicht

Klimatisierte 4-Zimmer-Maisonette mit traumhafter Terrasse - und begehbarem Dach!

1020 Wien | Wien 2., Leopoldstadt | Wien

Beschreibung


In guter Lage des 2. Bezirks, unweit des Donaukanals und dem Augarten gelegen, steht diese 4-Zimmer Maisonettewohnung in der
Rembrandtstraße nach Absprache zur Anmietung.

Bitte beachten Sie: Die Wohnung wird aktuell noch saniert (Terrassenbelag, Ausmalen), daher sind dem Exposé Fotos aus der Vorvermarktung beigefügt.

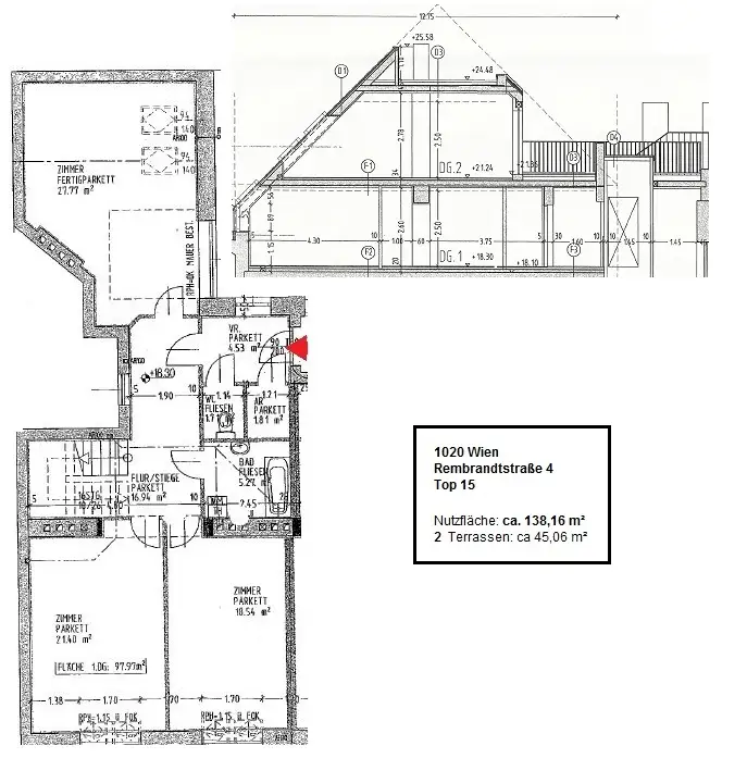
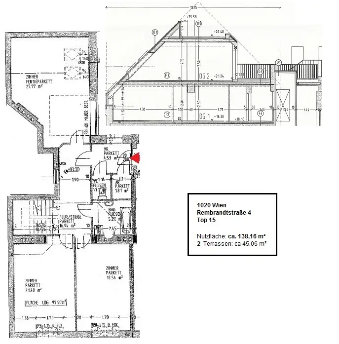
Die ca. 138 m² große Wohnung liegt im Dachgeschoss (4. Stock) und gliedert sich in einen Vorraum, von dem aus drei Schlafzimmer, das Badezimmer, ein Abstellraum sowie eine separate Toilette erreichbar sind.
Auf der oberen Etage befinden sich die Küche sowie der Wohnbereich mit Zugang zur traumhaften Terrasse, die direkten Zugang zum eigenen Dachgarten bietet. Ebenfalls auf dieser Etage gibt es eine weitere separate Toilette und einen zweiten Abstellraum.

Einige Highlights:

- hervorragender Grundriss
- alle Räume sind klimatisiert und saniert
- Ausrichtung sowohl zum Innenhof als auch zur Straße
- großzügige, moderne Küche
- große Terrasse (ca. 45 m²) mit Zugang zum Dachgarten
- Badezimmer mit Dusche, Badewanne und Waschmaschinenanschluss
- optimale öffentliche Anbindungen (U2, U4, Buslinien 5A, 5B, Straßenbahnlinien 2 und 31)
- Restaurants, Cafés und Einkaufsmöglichkeiten in unmittelbarer Nähe
- der beliebte Karmelitermarkt ist nur 10 Gehminuten entfernt

Selbstverständlich stehen sowohl Fernseh- als auch Internetanschluss sowie Lift und ein Kellerabteil zur Verfügung.

Der monatliche Gesamtmietzins dieser Wohnung beläuft sich auf Euro 2.688,46 inklusive Betriebskosten, Lift und Umsatzsteuer.

Vertragsgebühren und Akontozahlungen (z.B. Betriebskosten) können sich per Jahreswechsel ändern.

Die Heiz- und Warmwasserversorgung erfolgt mittels Gasetagenheizung und ist im Mietpreis nicht inkludiert.

Per Telefon werden keine Termine vergeben! Wir bitten Sie, ausschließlich das Kontaktformular der Immobilienplattformen für Anfragen zu nutzen. Nach Erhalt unserer E-Mail antworten Sie bitte auf dieses E-Mail mit Ihrem Besichtigungswunsch.

Wir möchten darauf hinweisen, dass unsere Antwort möglicherweise in Ihrem Spamordner landen könnte.

Wir freuen uns auf Ihre Anfrage und einen gemeinsamen Besichtigungstermin!

Ausstattungs­beschreibung

Mietdauer: 5 Jahre befristet mit Aussicht auf Verlängerung,
Mindestmietdauer: 1 Jahr Kündigungsverzicht, 3 Monate Kündigungsfrist
Liftkosten: Euro 44,08 inkl. USt

Lage und Verkehrs­anbindung

Zentrale Lage im Herzen des 2. Bezirks, umgeben von urbaner Vielfalt und grüner Erholung. Nähe Donaukanal, Karmelitermarkt und Prater. Hervorragende Anbindung: U-Bahn, Straßenbahn und Radwege. Perfekte Mischung aus pulsierendem Stadtleben und entspannter Atmosphäre.

Grundriss

Fakten

Objektnummer:
247/20327
Objekttyp:
Wohnung
Terrasse:
1
Terrassenfläche:
45 m²
Wohnfläche:
138,16 m²
Zimmer:
4
Badezimmer:
1
Toilette:
2
Baujahr:
2002 /DG-Ausbau
Neubau:
Ja
Verfügbarkeit:
Verfügbar

Preisdetails

Gesamtmiete:
2.688,46 €
Nettomiete:
2.210,56 €
Betriebskosten netto:
233,49 €
Umsatzsteuer:
244,41 €
Preisinfos:
Abwicklung und Durchführung Mietvertrag: € 360,-
Kaution:
8.100,00 €

Ausstattungen

Boden:
Parkett
Fahrstuhl
Abstellraum
Etagenheizung

Energieeffizienz

HWB:
85,28 kWh/(m²*a)
HWB Klasse:
C
fGEE:
1,78
fGEE Klasse:
D

Ansprech­partner

Vivienne Spicak

Vivienne Spicak

Vertrieb
Mietanbot abgeben