Haus I
Zimmer 1
Zimmer 1_2
Zimmer 1_1
Küche 1
Zimmer 2
Zimmer 3_2
Zimmer 3
Vorraum 1_1
Schrankraum
Bad
Küche 1_1
Zimmer 3_1
Zimmer 2_1
Vorraum 1_2
Vorraum 1
Haus II

Klein, fein und voller Möglichkeiten - 3 Zimmer mit Zukunft!

1170 Wien | Wien 17., Hernals | Wien

Beschreibung

In attraktiver Lage des 17. Bezirks gelangen in der Beheimgasse mehrere Wohnungen zum Einzelabverkauf. Das Angebot umfasst überwiegend unbefristet und befristet vermietete sowie einige leerstehende Einheiten mit Wohnflächen von ca. 25 m² bis 112 m²; Dachgeschosswohnungen verfügen über Freiflächen.

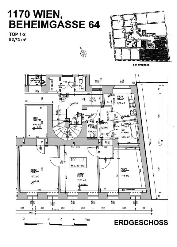
Die ca. 83 m² große 3-Zimmer-Wohnung (Vorraum, Küche, 3 Zimmer, Schrankraum, Badezimmer und Toilette) befindet sich im Erdgeschoss eines gepflegten Gründerzeithauses, das 2008 saniert und ausgebaut wurde und ist noch
bis 14.09.2026 befristet vermietet. Sie bietet kurz-, mittel- und langfristig eine absolute Vorteilslage.

Die Highlights:

- hervorragende Raumaufteilung
- sehr guter Zustand
- moderne, voll ausgestattete Küche
- Aufzug vorhanden
- Kellerabteil, ca. 5 m²
- Kinderwagen- und Fahrradraum
- Fernwärmeheizung
- befristet vermietet bis 14.09.2026
(keine Eigennutzung bis zur Kündigung des Mieters; bei einem neuen Mietverhältnis kann der Richtwertmietzins
vereinbart werden; Mieterin Jahrgang 1999/2001)
- derzeit monatliche Mieteinnahmen netto € 519,49 inkl. Inventarmiete (Betriebskosten nicht inkludiert)

Lage-Highlights:

- Grün & Erholung: Christine-Nöstlinger-Park direkt ums Eck – ideal für Spaziergänge, Sport und Freizeit
- Öffentliche Anbindung: Straßenbahnlinien 43 und 9 in Gehweite, schnelle Verbindung ins Stadtzentrum
- Nahversorgung & Alltag: Supermärkte, Bäckereien, Apotheken, Cafés und Restaurants zu Fuß erreichbar
- Lokale Atmosphäre: Ruhige Wohnstraße mit typischem 17. Bezirk-Charme und lebendiger Nachbarschaft

Der Kaufpreis für diese in ausgezeichneter Lage und Infrastruktur befindliche Eigentumswohnung beträgt Euro 324.000,-.

Vereinbaren Sie noch heute einen Besichtigungstermin und lassen Sie sich von dieser besonderen Immobilie verzaubern.
Diesbezüglich freuen wir uns über Ihre geschätzte Anfrage per Mail.

Tipp: Die gesamte Anlage wird gerade parifiziert und abverkauft. Fragen Sie uns nach weiteren Objekten bzw. Paketangeboten!

Wir möchten darauf hinweisen, dass unsere Antwort möglicherweise in Ihrem Spamordner landen könnte. Bitte kontrollieren Sie diesen, wenn Sie keine Rückmeldung auf Ihre Anfrage erhalten haben.

Wir freuen uns auf Ihre Anfrage und einen gemeinsamen Besichtigungstermin!

Ausstattungs­beschreibung

Vorschreibung € 883,55 (HMZ € 463,49 + Inventarmiete € 56,00 + Benützungsentgelt € 25,00 + BK-Akonto € 256,46 + Ust. € 82,60)

Baujahr Grundsubstanz ca. 1900 / Ausbau ca. 2008

Da erstmalig Wohnungseigentum begründet wird, gibt es derzeit keine Reparaturrücklage. Die zukünftige Zahlung beläuft sich auf ca. 1,13 €/m² Wohnfläche.

Lage und Verkehrs­anbindung

Ruhige Wohngegend im 17. Bezirk mit hervorragender Infrastruktur. Öffentliche Verkehrsmittel fußläufig erreichbar, das Stadtzentrum schnell angebunden. Vielfältige Einkaufsmöglichkeiten, Cafés und nahe Grünzonen machen die Lage besonders attraktiv.

Grundriss

Fakten

Objektnummer:
247/04393
Objekttyp:
Wohnung
Wohnfläche:
82,73 m²
Zimmer:
3
Badezimmer:
1
Toilette:
1
Baujahr:
1900/san.Altbau
Altbau:
Ja
Verfügbarkeit:
Verfügbar

Preisdetails

Kaufpreis:
324.000,00 €
Kaufpreis/m²
3.916,35 €
Preisinfos:
GrESt 3,5% + Grundbucheintragung 1,1% des Gesamtkaufpreises / Vertragserrichtung 1,5% + Barauslagen, Beglaubigungs-, ggf. Treuhandkosten bei Finanzierung +USt. (WeiKes RA) / WE-Begründungsbeitrag € 500 +USt. / Provisio…
Vermittlungsprovision:
Ja
Provision:
3%

Ausstattungen

Fahrstuhl
Abstellraum
Fernwärme

Energieeffizienz

HWB:
103,2 kWh/(m²*a)
HWB Klasse:
D
fGEE:
1,07
fGEE Klasse:
C

Ansprech­partner

Ruschitzka-Schilhorn Marion

Ruschitzka-Schilhorn Marion

Vertrieb