Wohnraum I
Wohnraum II
Schlafzimmer
2. Schlafzimmer
Küche
Vorraum
Badezimmer
Hausansicht II
Hausansicht III
Innenhof I
Innenhof II
Eingang Stiegenhaus
Stiegenhaus I
Stiegenhaus II
Hausansicht I

Investieren mit Plan: Befristet vermietete Altbauwohnung – 3 Zimmer voller Potenzial

1100 Wien | Wien 10., Favoriten | Wien

Beschreibung


Sichern Sie sich diese geräumige 3-Zimmer-Wohnung nahe dem Matzleinsdorfer Platz.

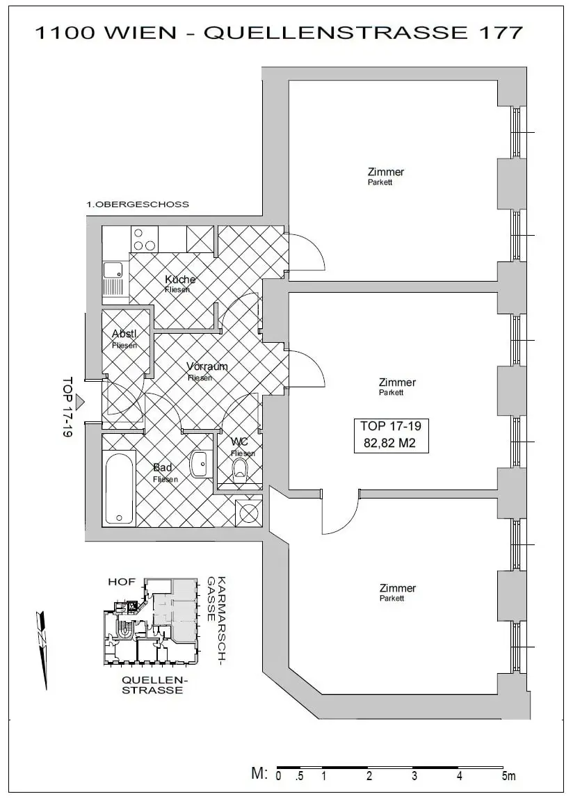
Die ca. 83 m² große Wohnung befindet sich im 1. Obergeschoss eines stilvoll sanierten Altbaus und überzeugt neben ihrer funktionalen sowie lichtdurchfluteten Raumaufteilung durch ihre Top-Lage.

Bitte beachten Sie, dass es sich bei den Bildern um Archivfotos handelt.

Die Details:
- Wohnungseigentumsobjekt
- Vorraum, Badezimmer, Wohnraum, Küche, Zimmer, WC
- Gaszentralheizung
- Aufzug vorhanden
- bis Juli 2027 befristet vermietet
- Mieteinnahmen netto € 438,50

Die Lage:

- Matzleinsdorfer Platz/Keplerplatz um die Ecke
- unweit zum Wienerberg
- Zahlreiche Cafés und Einkaufsmöglichkeiten

Der Kaufpreis für diese Eigentumswohnung mit hervorragender Infrastruktur beträgt Euro 229.000.

Tipp: Die gesamte Anlage wird gerade parifiziert und abverkauft. Fragen Sie uns nach weiteren Objekten bzw. Paketangeboten!

Wir möchten darauf hinweisen, dass unsere Antwort möglicherweise in Ihrem Spamordner landen könnte. Bitte kontrollieren Sie diesen, wenn Sie keine Rückmeldung auf Ihre Anfrage erhalten haben.

Ausstattungs­beschreibung

Vorschreibung € 902,66 (HMZ € 438,50 + BK-Akonto € 256,74 + Lift € 24,85 + WW € 37,27 + HZK € 57,97 + Ust. € 87,33)

Baujahr Grundsubstanz ca. 1888 / Ausbau ca. 2005

Da erstmalig Wohnungseigentum begründet wird, gibt es derzeit keine Reparaturrücklage. Die zukünftige Zahlung beläuft sich auf ca. 1,06 €/m² Wohnfläche.

Lage und Verkehrs­anbindung

Genussmenschen kommen in den vielen Cafés/Restaurants auf ihre Kosten. Sportbegeisterte finden in der Boulderbar oder dem Fitnesscenter ideale Möglichkeiten und das Wienerberg bietet einen Platz zum Entspannen. Eine perfekte Anbindung an Straßenbahnen und Busse ist ebenfalls gegeben.

Grundriss

Fakten

Objektnummer:
247/21864
Objekttyp:
Wohnung
Wohnfläche:
83 m²
Zimmer:
3
Badezimmer:
1
Toilette:
1
Baujahr:
1888
Altbau:
Ja
Verfügbarkeit:
Verfügbar

Preisdetails

Kaufpreis:
229.000,00 €
Kaufpreis/m²
2.759,04 €
Betriebskosten netto:
256,74 €
Sonstige Kosten netto:
24,85 €
Preisinfos:
GrESt 3,5% + Grundbucheintragung 1,1% des Gesamtkaufpreises / Vertragserrichtung 1,5% + Barauslagen, Beglaubigungs-, ggf. Treuhandkosten bei Finanzierung +USt. (WeiKes RA) / WE-Begründungsbeitrag € 500 +USt. / Provisio…
Vermittlungsprovision:
Ja
Provision:
3%

Ausstattungen

Fahrstuhl
Abstellraum

Energieeffizienz

HWB:
73,7 kWh/(m²*a)
HWB Klasse:
C
fGEE:
1,63
fGEE Klasse:
C

Ansprech­partner

Ruschitzka-Schilhorn Marion

Ruschitzka-Schilhorn Marion

Vertrieb