Wohnzimmer-Balkon
Wohnzimmer II
Küche
Schlafzimmer BalkonI
Schlafzimmer V
Vorzimmer
Schlafzimmer
Badezimmer
Wohnzimmer
Schlafzimmer II
Schlafzimmer III
Wohnzimmer III
Abstellraum
Schlafzimmer-Balkon
Schlafzimmer Balkon
Aussicht
Tiefgarage

Hochwertige 3-Zimmer-Wohnung mit 2 Balkonen und PKW-Stellplatz - nächst Wattgasse

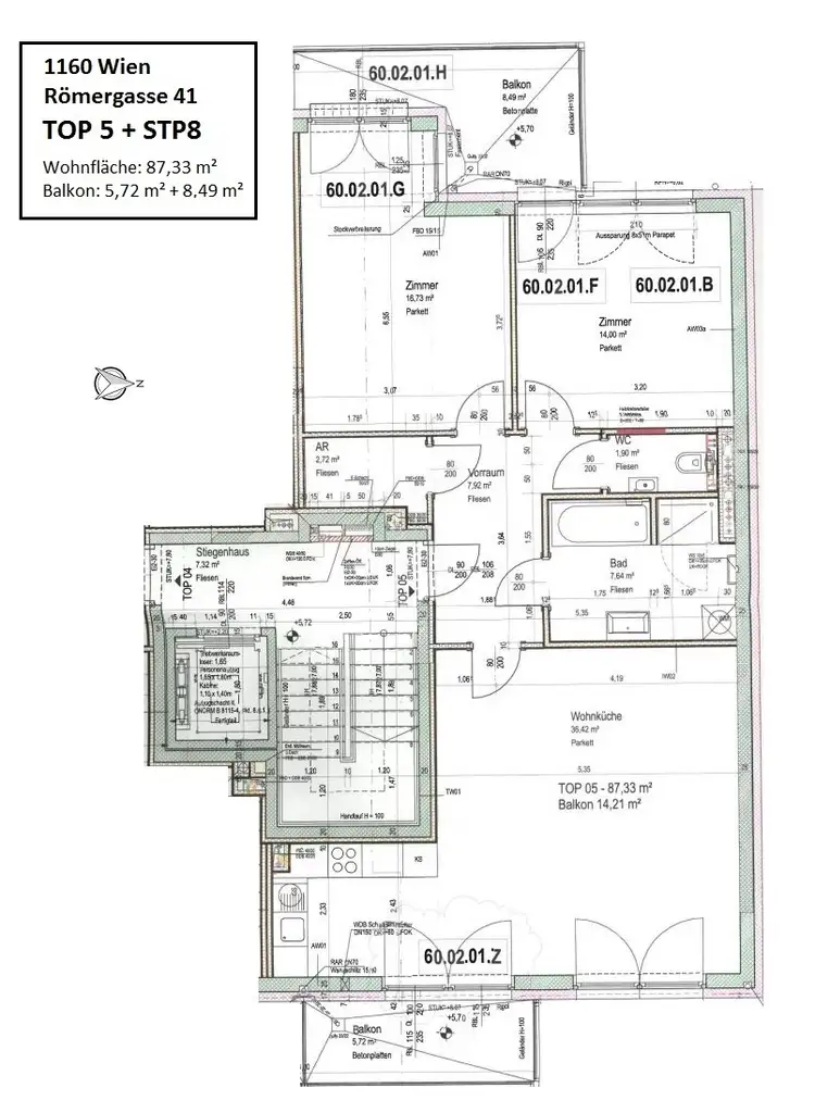
1160 Wien | Römergasse | 87,33 m²

Beschreibung


Zur Anmietung nach Absprache steht diese super aufgeteilte 3-Zimmer-Wohnung mit 2 Balkonen und PKW-Stellplatz in der Römergasse 41 im 16. Bezirk, für Sie bereit.

Bitte beachten Sie, dass die Wohnung derzeit noch bewohnt ist und es sich bei den Bildern um Archivfotos handelt.

Die ca. 87 m² große Wohnung im 1. Obergeschoss eines gepflegten Neubaus umfasst einen Vorraum, eine Wohnküche, zwei Zimmer, einen Abstellraum, ein Badezimmer und eine separate Toilette.

Einige Highlights:

- hervorragender Grundriss
- zwei Balkone (insgesamt ca. 14 m²)
- voll ausgestattete Küche
- Badezimmer mit Badewanne, Dusche und Waschmaschinenanschluss
- hochwertiger Parkettboden
- Innen- und Aussenjalousien vorhanden

- optimale öffentliche Anbindungen (Straßenbahnlinien 2 und 44)
- Restaurants, Cafés und Einkaufsmöglichkeiten
 in unmittelbarer Nähe

Selbstverständlich stehen sowohl Fernseh- als auch Internetanschluss sowie Lift und ein Kellerabteil zur Verfügung.

Der Mietzins beläuft sich auf Euro 1.493,67 inkl. Betriebskosten.

Die Heiz- und Warmwasserversorgung erfolgt per Gaszentralheizung mit Fußbodenheizung. Die Kosten dafür betragen:

- Heizung: Euro 78,60
- Warmwasser: Euro 38,42

Somit beläuft sich die monatliche Gesamtbelastung dieser Wohnung auf Euro 1.610,69 inkl. Betriebskosten, Heizung und Warmwasser.
Die Wohnung wird ohne umsatzsteuer vermietet.

Per Telefon werden keine Termine vergeben! Wir bitten Sie, ausschließlich das Kontaktformular der Immobilienplattformen für Anfragen zu nutzen. Nach Erhalt unserer E-Mail antworten Sie bitte auf dieses E-Mail mit Ihrem Besichtigungswunsch.

Wir möchten darauf hinweisen, dass unsere Antwort möglicherweise in Ihrem Spamordner landen könnte.

Wir freuen uns auf Ihre Anfrage und einen gemeinsamen Besichtigungstermin!

Ausstattungs­beschreibung

Mietdauer: 5 Jahre befristet,
Mindestmietdauer: 1 Jahr Kündigungsverzicht, 3 Monate Kündigungsfrist

Lage und Verkehrs­anbindung

Die Umgebung zeichnet sich durch ihre gute Infrastruktur, Grünflächen und eine lebendige Nachbarschaft aus. Der öffentliche Verkehr ist optimal erreichbar. In der Umgebung finden sich zahlreiche Einkaufsmöglichkeiten, gemütliche Cafés und Restaurants, die zum Verweilen einladen.

Grundriss

Fakten

Objektnummer:
247/05351
Objekttyp:
Wohnung
Balkon:
1
Balkonfläche:
14,21 m²
Wohnfläche:
87,33 m²
Zimmer:
3
Badezimmer:
1
Toilette:
1
Stockwerk:
1
Baujahr:
-/Neubau
Neubau:
Ja
Verfügbarkeit:
Verfügbar

Preisdetails

Gesamtmiete:
1.493,67 €
Nettomiete:
1.263,12 €
Betriebskosten netto:
230,55 €
Preisinfos:
Abwicklung und Durchführung Mietvertrag: € 375,-
Kaution:
4.850,00 €

Ausstattungen

Boden:
Parkett
Fahrstuhl
Abstellraum

Energieeffizienz

HWB:
29,8 kWh/(m²*a)
HWB Klasse:
B
fGEE:
0,88
fGEE Klasse:
B

Ansprech­partner

Melanie Eiblthauer

Melanie Eiblthauer

Vertrieb
Mietanbot abgeben