Kü-Ber.
Kü-B.
W-Kü
SZ zu BZ_1
Kü-B._1
SZ zu BZ
Ter.
Kü-Ber._1
BZ
SZ
WZ-Ber
SZ_1
VZ
W-Kü_1
WZ-Ber_1
Ausblick-T.
Toilette
H-Ansicht

Herrliche Dachgeschosswohnung mit großer Terrasse - Nähe Krottenbachstraße!

1190 Wien | Wien 19., Döbling | Wien

Beschreibung


Zum ehest baldigen Bezug steht diese wunderschöne und ruhig gelegene 2-Zimmer-Dachgeschosswohnung im 19. Bezirk in der Rodlergasse, für Sie bereit.

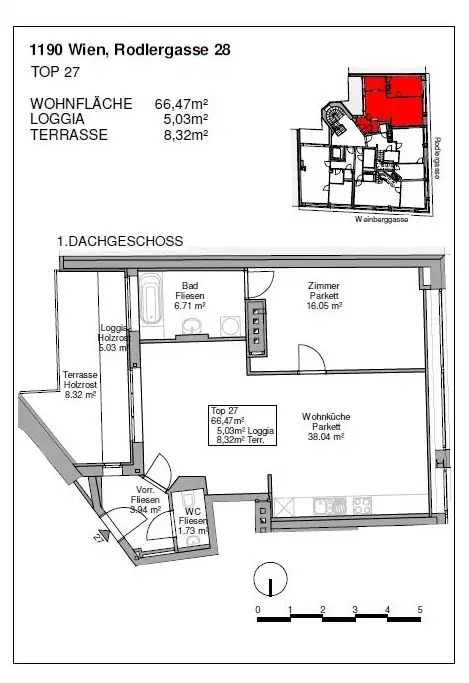
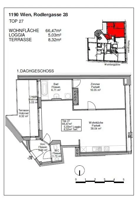
Die ca. 66,50 m² große Wohnung befindet sich im 1. Dachgeschoss eines sanierten Altbaus. Sie gliedert sich in einen Vorraum, einen geräumigen Wohnraum mit Küchenzeile, einer großzügigen Loggia/Terrasse, einem Schlafzimmer sowie einem Badezimmer und einer separaten Toilette.

Einige Highlights:

- gepflegter Zustand
- gut durchdachte Raumaufteilung
- im Wohnraum integrierte Küche (voll ausgestattet)
- ostseitige Loggia/Terrasse ( ca. 13 m²)
- Badezimmer mit Badewanne und Waschmaschinenanschluss
- Innenhofgarten für alle Hausbewohner
- Zentralheizung mit Einzelzählern der Fernwärme
- Hugo Wolf Park in unmittelbarer Nähe
- optimale öffentliche Anbindungen (S-Bahn S45 und Buslinie 35A)
- Einkaufsmöglichkeiten, Top Restaurants und Cafés "ums Eck“

Selbstverständlich stehen sowohl Fernseh- als auch Internetanschluss sowie Lift und ein Kellerabteil zur Verfügung.

Der monatliche Gesamtmietzins dieser Wohnung beläuft sich auf Euro 1.399,95 inklusive Betriebskosten, Lift, Möbelmiete (Küche), SAT-Miete und Umsatzsteuer.

Vertragsgebühren und Akontozahlungen (z.B. Betriebskosten) können sich per Jahreswechsel ändern.

Die Heiz- und Warmwasserversorgung erfolgt per Fernwärmeheizung und wird verbrauchsabhängig abgerechnet.
Die Kosten sind nicht im Mietpreis enthalten.

Je nach Eigentümer kann eine Kaution zwischen 3 und 6 Bruttomonatsmieten verlangt werden.

Per Telefon werden keine Termine vergeben! Wir bitten Sie, ausschließlich das Kontaktformular der Immobilienplattformen für Anfragen zu nutzen. Nach Erhalt unserer E-Mail antworten Sie bitte auf dieses E-Mail mit Ihrem Besichtigungswunsch.

Wir möchten darauf hinweisen, dass unsere Antwort möglicherweise in Ihrem Spamordner landen könnte.

Wir freuen uns auf Ihre Anfrage und einen gemeinsamen Besichtigungstermin!

Ausstattungs­beschreibung

Mietdauer: 5 Jahre befristet,
Mindestmietdauer: 1 Jahr Kündigungsverzicht, 3 Monate Kündigungsfrist,
Liftkosten € 24,43 inkl. USt. in den BK enthalten,

Lage und Verkehrs­anbindung

Ruhige und grüne Lage im begehrten 19. Bezirk, nahe den Weinbergen und dem charmanten Heurigenviertel. Sehr gute Anbindung an öffentliche Verkehrsmittel und ideale Nahversorgung. Perfekte Kombination aus Natur, Erholung und urbanem Komfort.

Grundriss

Fakten

Objektnummer:
247/06804
Objekttyp:
Wohnung
Terrasse:
1
Loggia:
1
Terrassenfläche:
8,32 m²
Loggia Fläche:
5,03 m²
Wohnfläche:
66,47 m²
Zimmer:
2
Badezimmer:
1
Toilette:
1
Baujahr:
1904/DG-Ausbau
Verfügbarkeit:
Verfügbar

Preisdetails

Gesamtmiete:
1.399,95 €
Nettomiete:
1.026,00 €
Betriebskosten netto:
246,68 €
Umsatzsteuer:
127,27 €
Preisinfos:
Abwicklung und Durchführung Mietvertrag: € 360,-
Kaution:
4.350,00 €

Ausstattungen

Barrierefrei
Fahrstuhl
Fernwärme

Energieeffizienz

HWB:
50,4 kWh/(m²*a)
HWB Klasse:
C
fGEE:
1,12
fGEE Klasse:
C

Ansprech­partner

Krenek Helene

Krenek Helene

Vertrieb
Mietanbot abgeben