Wohnraum I
Wohnraum II
Küche
Badezimmer
Vorraum
Balkon
Gemeins.Terrasse

Helle Einraumwohnung mit Balkon inkl. Gemeinschaftsterrasse - unweit der BOKU!

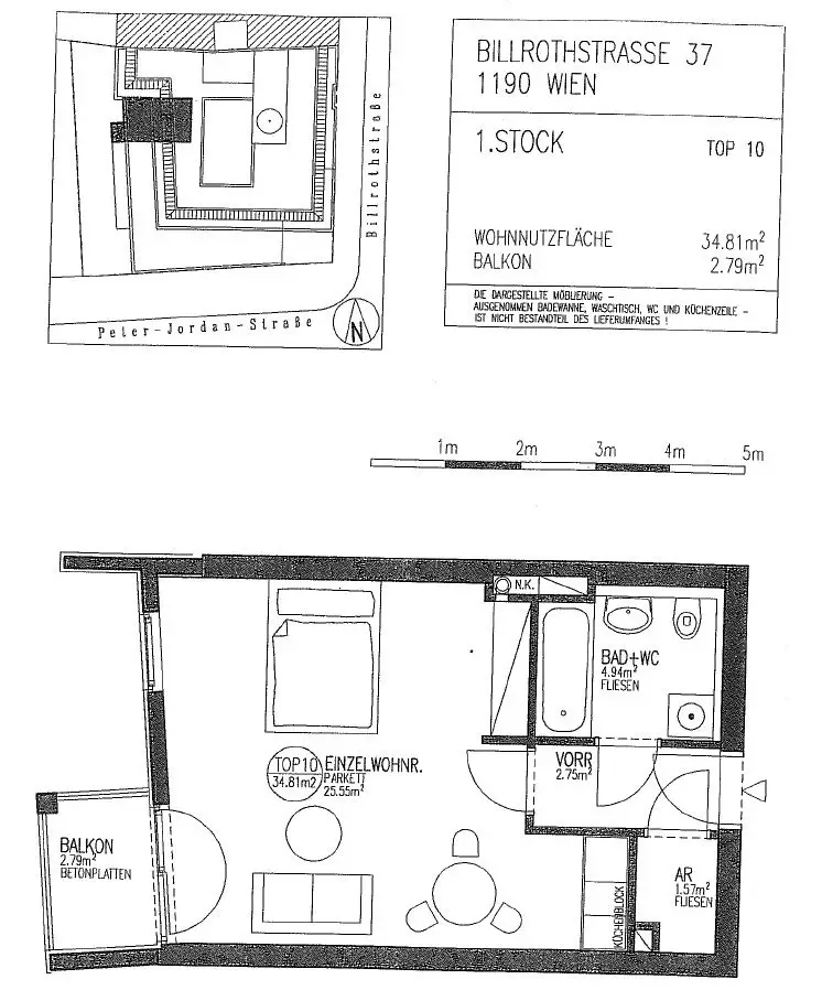
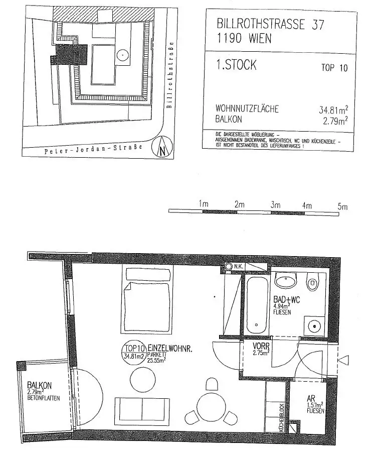
1190 Wien | Billrothstraße | 34,81 m²

Beschreibung

Zum Bezug nach Absprache steht diese schöne 1-Zimmer-Wohnung mit Balkon in der Billrothstraße 37 im 19. Bezirk, für Sie bereit.

Die ca. 35 m² große Wohnung befindet sich im 1. Obergeschoss eines schönen Neubaus und gliedert sich in einen Vorraum, einen Wohn-/Schlafraum, einen Abstellraum und ein Badezimmer mit Toilette.

Einige Highlights:

- hervorragender Grundriss
- ca. 3 m² großer Balkon (westseitig)
- Badezimmer mit Badewanne, Toilette und Waschmaschinenanschluss
- optimale öffentliche Anbindungen (U6 und Straßenbahnlinie
38)
- Restaurants, Cafés und Einkaufsmöglichkeiten in unmittelbarer Nähe

Selbstverständlich stehen sowohl Fernseh- als auch Internetanschluss sowie Lift und ein Kellerabteil zur Verfügung.

Der Mietzins beläuft sich auf Euro 736,17 inkl. Betriebskosten, Lift und Umsatzsteuer.
.
Die Heiz- und Warmwasserversorgung erfolgt per Gaszentralheizung. Die Kosten dafür betragen:

- Heizung: Euro 41,77 inkl. USt.
- Warmwasser: Euro 21,06 inkl. USt.

Somit beläuft sich die monatliche Gesamtbelastung dieser Wohnung auf Euro 799,01 inkl. Betriebskosten, Heizung, Warmwasser, Lift und Umsatzsteuer.

Per Telefon werden keine Termine vergeben! Wir bitten Sie, ausschließlich das Kontaktformular der Immobilienplattformen für Anfragen zu nutzen. Nach Erhalt unserer E-Mail antworten Sie bitte auf dieses E-Mail mit Ihrem Besichtigungswunsch.

Wir möchten darauf hinweisen, dass unsere Antwort möglicherweise in Ihrem Spamordner landen könnte.

Wir freuen uns auf Ihre Anfrage und einen gemeinsamen Besichtigungstermin!


Ausstattungs­beschreibung

Mietdauer: 5 Jahre befristet,
Mindestmietdauer: 1 Jahr Kündigungsverzicht
und 3 Monate Kündigungsfrist,
Liftkosten € 11,48 inkl. USt. in den BK enthalten,

Lage und Verkehrs­anbindung

Das Objekt liegt in zentraler Lage in Döbling, umgeben von eleganter Architektur und urbanem Flair. In der Nähe finden sich charmante Parks, erstklassige Restaurants, Einkaufsmöglichkeiten und eine ausgezeichnete Verkehrsanbindung – ideal für stilvolles Wohnen in Wien.

Grundriss

Fakten

Objektnummer:
247/13896
Objekttyp:
Wohnung
Balkon:
1
Balkonfläche:
2,79 m²
Wohnfläche:
34,81 m²
Zimmer:
1
Badezimmer:
1
Toilette:
1
Stockwerk:
1
Baujahr:
- /Neubau
Neubau:
Ja
Verfügbarkeit:
Verfügbar

Preisdetails

Gesamtmiete:
736,18 €
Nettomiete:
562,39 €
Betriebskosten netto:
96,42 €
Sonstige Kosten netto:
10,44 €
Umsatzsteuer:
66,93 €
Preisinfos:
Abwicklung und Durchführung Mietvertrag: € 375,-
Kaution:
2.400,00 €

Ausstattungen

Fahrstuhl
Abstellraum

Energieeffizienz

HWB:
59,1 kWh/(m²*a)
HWB Klasse:
C
fGEE:
1,32
fGEE Klasse:
C

Ansprech­partner

Sebastian Auer

Sebastian Auer

Vertrieb
Mietanbot abgeben