Wohnraum I
Terrasse I
Wohnraum III
Wohnraum IV
Terrasse
Zimmer III
Zimmer II
Zimmer I
Vorraum
Bad
Zimmer
Hausansicht

Helle 2-Zimmer Dachgeschosswohnung mit Terrasse - in der Koloniestraße

1210 Wien | Koloniestraße | 46,94 m²
Wohnraum I
Terrasse I
Wohnraum III
Wohnraum IV
Terrasse
Zimmer III
Zimmer II
Zimmer I
Vorraum
Bad
Zimmer
Hausansicht

Beschreibung


Unweit der Shopping City Nord befindet sich Ihr neues Zuhause mit Blick ins Grüne! Das moderne Wohnbauprojekt besteht aus gesamt 166 Mietwohnungen verteilt auf 6 Stiegen. Die gut gestalteten 2-4 Zimmerwohnungen verfügen alle über Freiflächen in Form von Balkonen, Loggien oder Terrassen und sind hochwertig ausgestattet.


Die Wohnung:
Diese moderne Wohnung mit 2 Zimmern und einer Nutzfläche von ca. 47 m² und einer Terrassen mit ca. 3 m² steht zur Anmietung nach Absprache, für Sie bereit. Im 1. Dachgeschoss erwartet Sie die Immobilie mit einer hochwertigen Ausstattung und einer durchdachten Raumaufteilung.

Die Highlights:
- Parkettböden
- Isolierglasfenster
- Fußbodenheizung
- Klimaanlage (2. und 3. Dachgeschoss)
- Außenliegende Rollläden
- Fernseh- und Internetanschlüsse (A1 und Magenta)
- Behindertengerechte Aufzüge
- Ebenerdig begehbare Kinderwagen- und Fahrradabstellräume
- Waschküche
- Indoor-Jugendspielraum, Spielplatz im Freien
- Kellerabteil zu jeder Wohnung zugeordnet
- Garage (Behindertenparkplätze vorhanden, Stellplätze mit Vorbereitung für Ladestation des Elektroautos)

Infrastruktur:
Optimale öffentliche Anbindungen - Buslinien 36A, 36B und die Straßenbahnlinie 26 bringt Sie in nur 3 Stationen zur S-Bahn (S3 und S4) U-Bahn Floridsdorf. Sämtliche Geschäfte des täglichen Bedarfs befinden sich in unmittelbarer Nähe. Das Shopping Center Nord (SCN), welches in nur wenigen Minuten zu erreichen ist, rundet das Angebot an Nahversorgern und sonstigen Einkaufsmöglichkeiten ab.

Der monatliche Gesamtmietzins dieser Wohnung beläuft sich auf Euro 940,01 inklusive Betriebskosten, und Umsatzsteuer.

Die Heiz- und Warmwasserversorgung erfolgt per Fußbodenheizung (Gaszentral) und wird verbrauchsabhängig abgerechnet. Die Kosten sind nicht im Mietpreis enthalten.

Wir möchten darauf hinweisen, dass unsere Antwort möglicherweise in Ihrem Spamordner landen könnte.

Wir bitten Sie, für Anfragen das Kontaktformular der Immobilienplattformen zu nutzen. Nach Erhalt unserer E-Mail antworten Sie bitte direkt auf dieses E-Mail mit Ihrem Besichtigungswunsch.

Wir freuen uns auf Ihre Anfrage und einen gemeinsamen Besichtigungstermin!

Ausstattungs­beschreibung

Mietdauer: 5 Jahre befristet mit Aussicht auf Verlängerung,
Mindestmietdauer: 1 Jahr Kündigungsverzicht
und 3 Monate Kündigungsfrist

Lage und Verkehrs­anbindung

Angenehme, ruhige Wohngegend mit starker Nahversorgung: Supermärkte, Apotheke und diverse Geschäfte in kurzer Distanz. Sehr gute Anbindung durch Straßenbahn und Bus, S-Bahn fußläufig. Shopping City Nord sowie Grünräume und Freizeitangebote schnell erreichbar.

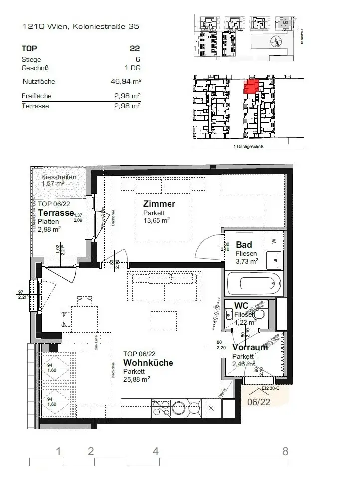
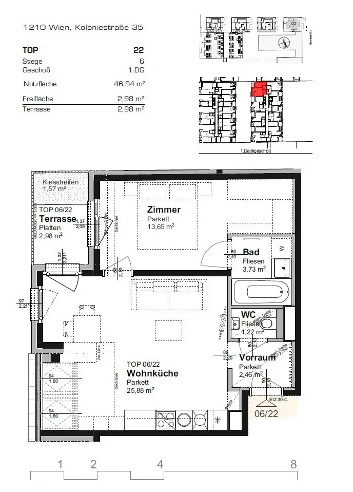
Grundriss

Fakten

Objektnummer:
247/08856
Objekttyp:
Wohnung
Terrasse:
1
Terrassenfläche:
2,98 m²
Wohnfläche:
46,94 m²
Zimmer:
2
Badezimmer:
1
Toilette:
1
Baujahr:
2019/Neubau
Neubau:
Ja
Verfügbarkeit:
Verfügbar

Preisdetails

Gesamtmiete:
940,01 €
Nettomiete:
755,98 €
Betriebskosten netto:
98,57 €
Umsatzsteuer:
85,46 €
Kaution:
2.900,00 €

Ausstattungen

Barrierefrei
Boden:
Parkett
Fahrstuhl
Fußbodenheizung

Energieeffizienz

HWB:
31,01 kWh/(m²*a)
HWB Klasse:
B
fGEE:
0,79
fGEE Klasse:
A

Ansprech­partner

Vivienne Spicak

Vivienne Spicak

Vertrieb
Mietanbot abgeben