Zimmer II
Zimmer I
Wohnraum
Aussicht
Zimmer
Küche
Hausansicht V
Vorraum
Bad
Hausansicht IV
Hausansicht I
Kellerabteil
Waschküche

Grundsolides Investment und Spekulationsobjekt – unbefristet als Praxis vermietete Neubauwohnung

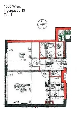
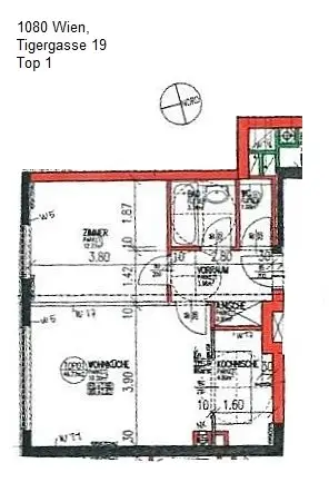
1080 Wien | 46,77 m²
Zimmer II
Zimmer I
Wohnraum
Aussicht
Zimmer
Küche
Hausansicht V
Vorraum
Bad
Hausansicht IV
Hausansicht I
Kellerabteil
Waschküche

Beschreibung


Diese unbefristet vermietete 2-Zimmer-Wohnung in der Tigergasse ist ein Zukunftsinvestment in den lebenswerten 8. Bezirk.

Die ca. 47 m² große Neubauwohnung liegt im 1. Obergeschoss eines gepflegten Hauses in der ruhig gelegenen Tigergasse.

Die Highlights:

- Parkettboden vorhanden
- hervorragender Grundriss
- Wärmeversorgung und Warmwasseraufbereitung erfolgt per Gas-Zentralheizung
­-
Waschküche vorhanden
- Aufzug vorhanden
- praktischer Abstellraum am Gang
- unbefristet vermietet
-
Umsatzsteuerbefreit vermietet (
Physiotherapie-Praxis)
- derzeit monatliche Mieteinnahmen
netto/brutto € 630,96 (Betriebskosten nicht inkludiert)

Die Lage:

Die Tigergasse im 8. Bezirk (Josefstadt) überzeugt durch ihre zentrale Lage und ihr charmantes Grätzl-Flair. In direkter Umgebung laden der Tigerpark und mehrere kleine Parks zum Entspannen ein, während gemütliche Cafés, trendige Lokale und vielfältige Restaurants für kulinarische Abwechslung sorgen. Kulturelle Highlights wie das Theater in der Josefstadt und die Piaristenkirche sind fußläufig erreichbar. Dank der Nähe zur U2 und mehreren Straßenbahnlinien ist die Anbindung ausgezeichnet – urban, grün und voller Leben.

Vereinbaren Sie noch heute einen Besichtigungstermin und lassen Sie sich von dieser besonderen Immobilie verzaubern.
Diesbezüglich freuen wir uns über Ihre geschätzte Anfrage per Mail.

Tipp: Es stehen mehrere Wohnungen des Hauses zum Verkauf. Vermietet oder leerstehend: es ist für jeden Zweck etwas dabei. Fragen Sie uns nach weiteren Objekten bzw. Paketangeboten!

Wir möchten darauf hinweisen, dass unsere Antwort möglicherweise in Ihrem Spamordner landen könnte. Bitte kontrollieren Sie diesen, wenn Sie keine Rückmeldung auf Ihre Anfrage erhalten haben.

Wir freuen uns auf Ihre Anfrage und einen gemeinsamen Besichtigungstermin!

Ausstattungs­beschreibung

Gesamtmietzins: € 760,39
(HMZ € 630,96 + BK-Akonto € 129,43)

Vorschreibung WEG: € 200,64
(Rücklage € 58,29 + BK-Akonto € 129,41 + USt. € 12,94)

Stand Rücklage per 31.12.2024 € 78.717,-

Lage und Verkehrs­anbindung

Die Tigergasse punktet mit zentraler Lage und charmantem Grätzl-Flair. Parks wie der Tigerpark laden zum Verweilen ein. Vielfältige Cafés, Lokale und Restaurants bieten kulinarische Abwechslung. Kulturelle Highlights wie das Theater in der Josefstadt sind fußläufig erreichbar.

Grundriss

Fakten

Objektnummer:
247/09893
Objekttyp:
Wohnung
Wohnfläche:
46,77 m²
Zimmer:
2
Badezimmer:
1
Toilette:
1
Baujahr:
1996/Neubau
Neubau:
Ja
Verfügbarkeit:
Verfügbar

Preisdetails

Kaufpreis:
254.000,00 €
Kaufpreis/m²
5.430,83 €
Preisinfos:
GrESt 3,5% + Grundbucheintragung 1,1% des Gesamtkaufpreises /Vertragserrichtung 1,5% + Barauslagen, Beglaubigungs-, ggf. Treuhandkosten bei Finanzierung +USt. (Dr. Elke Hule-Medek, RA) / Provision 3% + USt. des Kaufprei…
Vermittlungsprovision:
Ja
Provision:
3%

Ausstattungen

Boden:
Parkett
Fahrstuhl

Energieeffizienz

HWB:
48,3 kWh/(m²*a)
HWB Klasse:
B
fGEE:
1,06
fGEE Klasse:
C

Ansprech­partner

Bernhard Stachl

Bernhard Stachl

Vertrieb