Wohnzimmer I
Wohnzimmer II
Wohnzimmer
Küche
Loggia
Zimmer 1 I
Zimmer 2 I
Zimmer 2
Vorraum
Vorraum I
Bad
Bad I
Flur
Ausblick
Loggia I
Ausblick Loggia
Anlage I

Geräumige 3-Zimmer-Maisonette mit Loggia! ACHTUNG FINANZIERUNGSBEITRAG!

1220 Wien | Groß Enzersdorfer Straße | 87,21 m²

Beschreibung


Zum Bezug nach Absprache steht diese 3-Zimmer-Maisonette im 22. Bezirk in der Groß-Enzersdorfer-Straße, für Sie bereit.

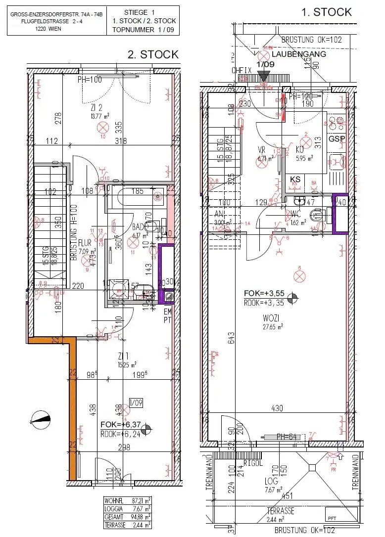
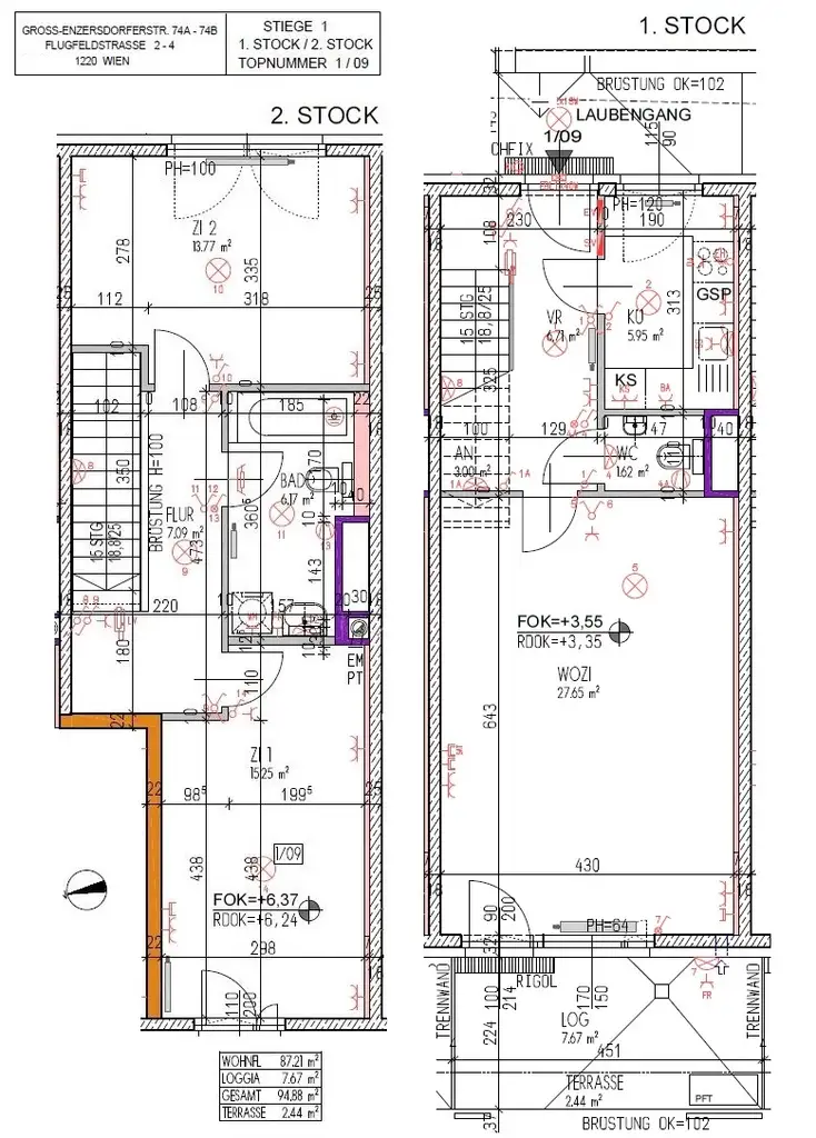
Die ca. 87 m² große Wohnung befindet sich im 1. und 2. Obergeschoss und erstreckt sich über zwei Etagen. Die untere Etage besteht aus einem Vorraum, einem Wohnzimmer, einer Küche sowie einem separatem WC.
Vom Wohnzimmer aus erreichen Sie die geräumige Loggia, welche in die ruhige Anlage ausgerichtetet ist.

In der oberen Etage befinden sich zwei Schlafzimmer sowie das Badezimmer mit Wanne, Waschmaschinenanschluss und WC.

Einige Highlights:

- hervorragender Grundriss
- ca. 10 m² große Terrasse/Loggia
- Badezimmer mit Badewanne, Toilette und Waschmaschinenanschluss
- separate Gästetoilette
- optimale öffentliche Anbindungen (U2 und Buslinie 26A)
- Einkaufsmöglichkeiten
in unmittelbarer Nähe

Die monatliche Miete beläuft sich auf Euro 954,56 inkl. Betriebskosten, Lift, Erhaltungs- und Verbesserungsbeitrag und USt.

Die Heiz- und Warmwasserversorgung erfolgt per Gasetagenheizung und ist im Mietpreis nicht inkludiert.

Ein Finanzierungsbeitrag von Euro 3.982,73 ist zusätzlich zur Kaution von Euro 2.900,- zu hinterlegen.

Somit ist ein Gesamtbetrag von Euro 6.882,73 (Kaution und Finanzierungsbeitrag) zu hinterlegen.

Per Telefon werden keine Termine vergeben! Wir bitten Sie, ausschließlich das Kontaktformular der
Immobilienplattformen für Anfragen zu nutzen. Nach Erhalt unserer E-Mail antworten Sie bitte auf dieses E-Mailmit Ihrem Besichtigungswunsch.


Wir möchten darauf hinweisen, dass unsere Antwort möglicherweise in Ihrem Spamordner landen könnte.

Wir freuen uns auf Ihre Anfrage und einen gemeinsamen Besichtigungstermin!

Ausstattungs­beschreibung

Mietdauer unbefristet,
Mindestmietdauer 1 Jahr
und 3 Monate Kündigungsfrist,
EVB € 101,23 nkl. USt. im HMZ enthalten,
Ein Finanzierungsbeitrag von Euro 3.982,73 ist zusätzlich zur Kaution von Euro 2.900,- zu hinterlegen.

Lage und Verkehrs­anbindung

Die Lage bietet ideale Anbindung mit Bus und Straßenbahn, in der Nähe des Nationalparks Donau-Auen für Naturfreunde.
Einkaufsmöglichkeiten und Gastronomie sind bequem erreichbar. Perfekte Mischung aus urbanem Komfort und naturnahem
Wohnen im 22. Wiener Gemeindebezirk.

Grundriss

Fakten

Objektnummer:
247/19197
Objekttyp:
Wohnung
Terrasse:
1
Loggia:
1
Terrassenfläche:
2,44 m²
Loggia Fläche:
7,67 m²
Wohnfläche:
87,21 m²
Zimmer:
3
Badezimmer:
1
Toilette:
2
Stockwerk:
1
Baujahr:
- /Neubau
Neubau:
Ja
Verfügbarkeit:
Verfügbar

Preisdetails

Gesamtmiete:
854,56 €
Nettomiete:
580,41 €
Betriebskosten netto:
274,15 €
Kaution:
2.900,00 €

Ausstattungen

Fahrstuhl
Fernwärme

Energieeffizienz

HWB:
34,7 kWh/(m²*a)
HWB Klasse:
B
fGEE:
1,02
fGEE Klasse:
C

Ansprech­partner

Vivienne Spicak

Vivienne Spicak

Vertrieb
Mietanbot abgeben