Wohnküche V
Zimmer
Wohnküche III
Galerie
Wohnküche II
Wohnküche IV
Freifläche I
Zimmer II
Freifläche II
Zimmer I
Blick zur Wohnküche
Galerie II
Freifläche
Badezimmer
Wohnküche
Vorraum
Galerie I
Hausansicht
Hausansicht III
Hausansicht VIII
Stiegenhaus innen IV
Stiegenhaus innen II

Exklusive 3-Zimmer-Maisonette mit Galerie und Terrasse im Herzen des 17. Bezirks!

1170 Wien | 109,69 m²
Wohnküche V
Zimmer
Wohnküche III
Galerie
Wohnküche II
Wohnküche IV
Freifläche I
Zimmer II
Freifläche II
Zimmer I
Blick zur Wohnküche
Galerie II
Freifläche
Badezimmer
Wohnküche
Vorraum
Galerie I
Hausansicht
Hausansicht III
Hausansicht VIII
Stiegenhaus innen IV
Stiegenhaus innen II

Beschreibung


In attraktiver Lage des 17. Bezirks gelangen in der Beringgasse mehrere Wohnungen, zwei Lager und ein Geschäftslokal zum Einzelabverkauf. Das Angebot umfasst überwiegend befristet und unfristet vermietete sowie einige leerstehende Einheiten mit Wohn-/Nutzflächen von ca. 29 m² bis 173 m²; vereinzelt verfügen die Wohnungenauch über Freiflächen
.

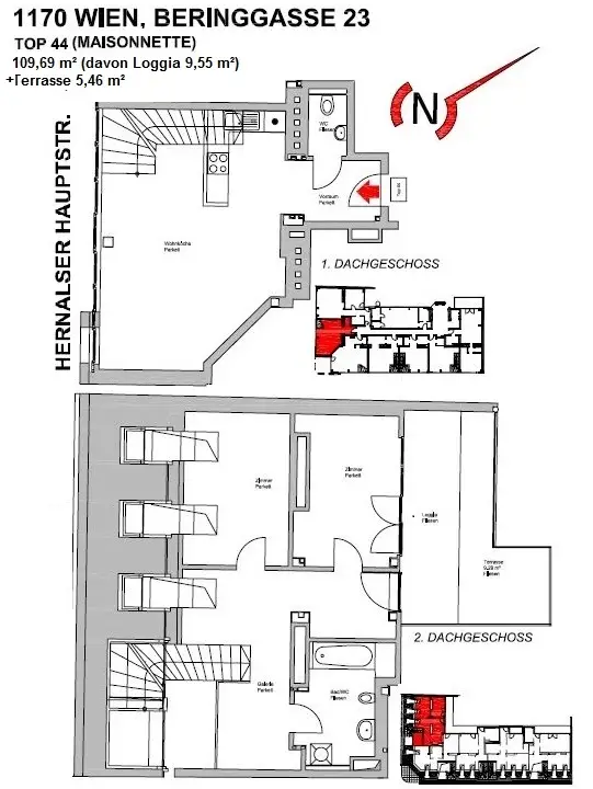
Die ca. 110 m² große 3-Zimmer-Maisonettewohnung (Vorraum, Wohnküche, 2 Zimmer, Galerie, Badezimmer mit Toilette, 1 Gästetoillette, Terrasse/Loggia) befindet sich im 1.+2. Dachgeschoss eines gepflegten Gründerzeithauses, das 2006 saniert und ausgebaut wurde. Sie bietet – kurz-, mittel- und langfristig eine absolute Vorteilslage!

Die Highlights:
- clevere Raumaufteilung
- Dachgeschoss-Zubau 2006 - dadurch sehr guter Zustand
- ca. 5,5 m² Terrasse mit ca. 9,5 m² Loggia (nordostseitig ausgerichtet)
- Aufzug vorhanden
- Kellerabteil 13 + Kellerabteil 44, ca. 5,61 m²
- Kinderwagen- und Fahrradraum

- Fernwärmeheizung
- Leerstand, dadurch sofort verfügbar

Lage-Highlights:
- Grün & Erholung: In der Umgebung gibt es mehrere Parkanlagen mit Spiel-, Sport- & Erholungsflächen
- Öffentliche Anbindung: S-Bahn,Straßenbahnlinien 9, 10 und 43 (fußläufig), gute Verbindung ins Stadtzentrum
- Nahversorgung & Alltag: Supermärkte, Bäckereien, Apotheken, Cafés und Restaurants zu Fuß erreichbar
- Lokale Atmosphäre: ruhig und urban zugleich – mit einer lebendigen Nachbarschaft, charmanter Alt- und Neubau-Struktur und einer guten Mischung aus städtischem Leben und Wohnqualität.

Der Kaufpreis für diese in ausgezeichneter Lage befindliche Eigentumswohnung beträgt Euro 599.000,-.

Vereinbaren Sie noch heute einen Besichtigungstermin und lassen Sie sich von dieser besonderen Immobilie verzaubern.
Diesbezüglich freuen wir uns über Ihre geschätzte Anfrage per Mail.

Tipp: Die gesamte Anlage wird gerade parifiziert und abverkauft. Fragen Sie uns nach weiteren Objekten bzw. Paketangeboten!

Wir möchten darauf hinweisen, dass unsere Antwort möglicherweise in Ihrem Spamordner landen könnte. Bitte kontrollieren Sie diesen, wenn Sie keine Rückmeldung auf Ihre Anfrage erhalten haben.

Wir freuen uns auf Ihre Anfrage und einen gemeinsamen Besichtigungstermin!

Ausstattungs­beschreibung

voraussichtliche Vorschreibung: BK €277,34 + BK-Aufzug € 21,75 + USt € 29,91

Da erstmalig Wohnungseigentum begründet wird, gibt es derzeit keine Reparaturrücklage.
Die zukünftige Zahlung beläuft sich auf ca. 1,13 €/m² Wohnfläche.

Lage und Verkehrs­anbindung

Attraktive Wohnlage mit optimaler Anbindung an die Wiener Innenstadt. Zahlreiche Einkaufsmöglichkeiten, Cafés und Erholungsflächen liegen in unmittelbarer Nähe. Urbanes Leben trifft auf ruhiges Wohnambiente.

Grundriss

Fakten

Objektnummer:
247/22083
Objekttyp:
Wohnung
Terrasse:
1
Terrassenfläche:
5,46 m²
Wohnfläche:
109,69 m²
Zimmer:
3
Badezimmer:
1
Toilette:
2
Baujahr:
2006/DG-Ausbau
Verfügbarkeit:
Verfügbar

Preisdetails

Kaufpreis:
599.000,00 €
Kaufpreis/m²
5.460,84 €
Preisinfos:
GrESt 3,5% + Grundbucheintragung 1,1% des Gesamtkaufpreises / Vertragserrichtung 1,5% + Barauslagen, Beglaubigungs-, ggf. Treuhandkosten bei Finanzierung +USt. (WeiKes RA) / WE-Begründungsbeitrag € 500 +USt. / Provisio…
Vermittlungsprovision:
Ja
Provision:
3%

Ausstattungen

Fahrstuhl
Abstellraum
Fernwärme

Energieeffizienz

HWB:
39,8 kWh/(m²*a)
HWB Klasse:
B
fGEE:
1,4
fGEE Klasse:
C

Ansprech­partner

Ruschitzka-Schilhorn Marion

Ruschitzka-Schilhorn Marion

Vertrieb