Wohnraum I
Wohnraum II
Schlafzimmer I
Schlafzimmer II
Küche
Badezimmer
Vorraum
Freifläche I
Freifläche II
Aussenansicht
Hausansicht III
Eingang_Postfächer
Stiegenhaus I
Hausansicht I
Hausansicht II
Hausansicht IV
Hausansicht V
Hausansicht VII
Gegensprechanlage
Stiegenhaus II
Stiegenhaus IV

Charmante Eigentumswohnung mit viel Potenzial in Favoriten!

1100 Wien | 57,92 m²

Beschreibung

Sichern Sie sich diese geräumige 2-Zimmer Wohnung inkl. Loggia - nahe dem Wienerberg.

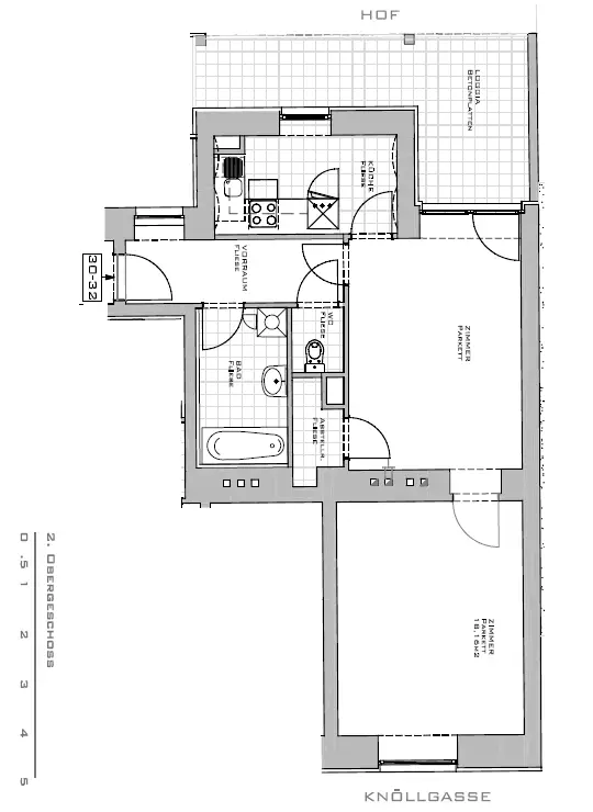
Die ca. 58 m² große Wohnung befindet sich im 3. Obergeschoss eines stilvoll sanierten Altbaus und überzeugt neben ihrer funktionalen sowie lichtdurchfluteten Raumaufteilung durch ihre Top-Lage.


Die Details:
- Wohnungseigentumsobjekt
- Vorraum, Badezimmer, WC, Abstellraum, Zimmer, Wohnraum, Küche, Loggia
- Fernwärmeheizung
- Aufzug vorhanden
- ca. 14 m² Loggia

Die Lage:

- Martin Luther King Park um die Ecke
- unweit zum Wienerberg
- Zahlreiche Cafés und Einkaufsmöglichkeiten

Der Kaufpreis für diese Eigentumswohnung mit hervorragender Infrastruktur beträgt Euro 249.000.

Tipp: Die gesamte Anlage wird gerade abverkauft, fragen Sie uns nach weiteren Objekten bzw. Paketangeboten!

Wir möchten darauf hinweisen, dass unsere Antwort möglicherweise in Ihrem Spamordner landen könnte. Bitte kontrollieren Sie diesen, wenn Sie keine Rückmeldung auf Ihre Anfrage erhalten haben.

Ausstattungs­beschreibung

Vorschreibung € 290,96 ( BK-Akonto € 198,36 + Rücklage € 27,76 + Ust. € 19,84)

Baujahr ca.1900/Saniert ca. 2004

Da erstmalig Wohnungseigentum begründet wurde, befindet sich die Rücklage im Aufbau.

Lage und Verkehrs­anbindung

Genussmenschen kommen in den vielen Cafés und Restaurants auf ihre Kosten. Sportbegeisterte finden in der Boulderbar, dem Golfclub oder dem Fitnesscenter ideale Möglichkeiten. Perfekte Anbindung an Straßenbahnen/Busse sowie Erholungsmöglichkeiten im Martin-Luther-King-Park und Wienerberg.

Grundriss

Fakten

Objektnummer:
247/22036
Objekttyp:
Wohnung
Loggia:
1
Loggia Fläche:
14 m²
Wohnfläche:
57,92 m²
Zimmer:
2
Badezimmer:
1
Toilette:
1
Baujahr:
1900
Altbau:
Ja
Verfügbarkeit:
Verfügbar

Preisdetails

Kaufpreis:
249.000,00 €
Kaufpreis/m²
4.299,03 €
Betriebskosten netto:
198,36 €
Sonstige Kosten netto:
72,76 €
Preisinfos:
GrESt 3,5% + Grundbucheintragung 1,1% des Gesamtkaufpreises / Vertragserrichtung 1,5% + Barauslagen, Beglaubigungs-, ggf. Treuhandkosten bei Finanzierung +USt. (WeiKes RA) / WE-Begründungsbeitrag € 500 +USt. / Provisio…
Vermittlungsprovision:
Ja
Provision:
3%

Ausstattungen

Fahrstuhl
Abstellraum
Fernwärme

Energieeffizienz

HWB:
59 kWh/(m²*a)
HWB Klasse:
C
fGEE:
1,41
fGEE Klasse:
C

Ansprech­partner

Sebastian Auer

Sebastian Auer

Vertrieb