Wohnzimmer
Küche I
Schlafzimmer
Wohnzimmer I
Küche
Bad
Ausblick
Vorraum
Schlafzimmer I
Aussenansicht I

Charmante 2-Zimmer-Altbauwohnung im 3. Bezirk!

1030 Wien | Wassergasse | 56,81 m²
Wohnzimmer
Küche I
Schlafzimmer
Wohnzimmer I
Küche
Bad
Ausblick
Vorraum
Schlafzimmer I
Aussenansicht I

Beschreibung

Zum Bezug nach Absprache steht diese schöne 2-Zimmer-Wohnung in der Wassergasse 15 im 3. Bezirk, für Sie bereit.

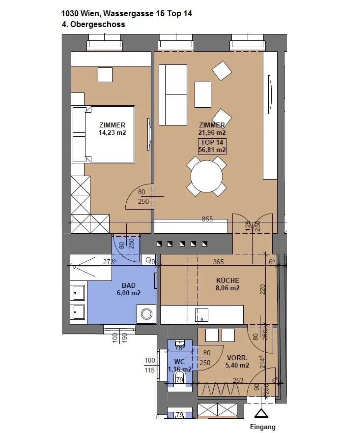
Die ca. 57 m² große Wohnung befindet sich im 4. Obergeschoss eines schönen Altbaus (aktuell ohne Aufzug) und gliedert sich in einen Vorraum, eine separate Küche, ein Wohnzimmer, ein Schlafzimmer, ein Badezimmer und eine separate Toilette.

Einige Highlights:

- gut durchdachte Raumaufteilung
- voll ausgestattete Küche
- Badezimmer mit Dusche, Doppelwaschbecken und Waschmaschinenanschluss
- optimale öffentliche Anbindungen (U3-Station: Rochusgasse)
- Restaurants, Cafés und Einkaufsmöglichkeiten in unmittelbarer Nähe

Selbstverständlich stehen sowohl Fernseh- als auch Internetanschluss und ein Kellerabteil zur Verfügung.

Der monatliche Gesamtmietzins dieser Wohnung beläuft sich auf Euro 1.125,15 inklusive Betriebskosten, Möbelmiete und Umsatzsteuer.

Die Heiz- und Warmwasserversorgung erfolgt per Gasetagenheizung und wird verbrauchsabhängig abgerechnet.
Die Kosten sind nicht im Mietpreis enthalten.

Wir möchten darauf hinweisen, dass unsere Antwort möglicherweise in Ihrem Spamordner landen könnte.

Wir freuen uns auf Ihre Anfrage und einen gemeinsamen Besichtigungstermin!

Ausstattungs­beschreibung

Mietdauer: 5 Jahre befristet,
Mindestmietdauer: 1 Jahr Kündigungsverzicht, 3 Monate Kündigungsfrist,
Möbelmiete € 41,50 inkl. USt.

Lage und Verkehrs­anbindung

Ruhige, zentrale Lage im Herzen von Wien, nahe dem beliebten Rochusmarkt und Stadtpark. Beste Anbindung durch U-Bahn,Bus und Straßenbahn. Zahlreiche Einkaufsmöglichkeiten, Restaurants und Freizeitangebote in direkter Umgebung. Ideal für Stadtliebhaber!

Grundriss

Fakten

Objektnummer:
247/07180
Objekttyp:
Wohnung
Wohnfläche:
56,81 m²
Zimmer:
2
Badezimmer:
1
Toilette:
1
Stockwerk:
4
Baujahr:
1884/Altbau
Altbau:
Ja
Verfügbarkeit:
Verfügbar

Preisdetails

Gesamtmiete:
1.125,15 €
Nettomiete:
814,70 €
Betriebskosten netto:
170,43 €
Umsatzsteuer:
102,29 €
Preisinfos:
Abwicklung und Durchführung Mietvertrag: € 200,-
Kaution:
3.400,00 €

Ausstattungen

Etagenheizung

Energieeffizienz

HWB:
158,9 kWh/(m²*a)
HWB Klasse:
E
fGEE:
2,76
fGEE Klasse:
E

Ansprech­partner

Vivienne Spicak

Vivienne Spicak

Vertrieb
Mietanbot abgeben