Loggia
Wohnraum I
2.Schlafzimmer
1.Schlafzimmer
Badezimmer I
Flur
Zutritt Top 1.17
Aufteilung
Innenhof I
Innenhof VI
Hausansicht IX
Hausansicht VIII
Aufteilung I
Hausflur
Toilette

Anleger oder Eigennutzer! 3 Zimmer mit Loggia - ERSTBEZUG!

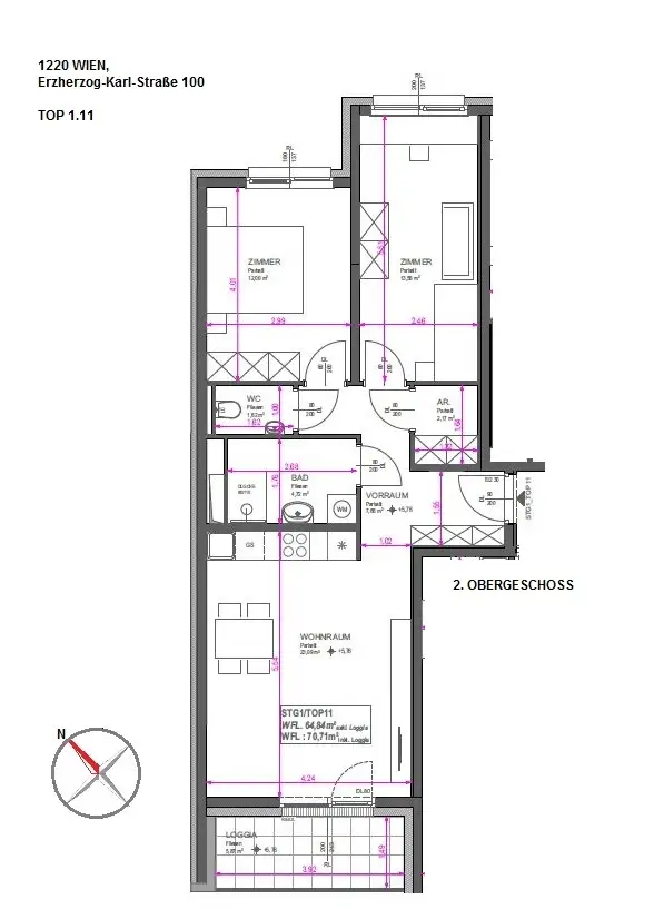
1220 Wien | 70,71 m²
Loggia
Wohnraum I
2.Schlafzimmer
1.Schlafzimmer
Badezimmer I
Flur
Zutritt Top 1.17
Aufteilung
Innenhof I
Innenhof VI
Hausansicht IX
Hausansicht VIII
Aufteilung I
Hausflur
Toilette

Beschreibung

Diese moderne 3-Zimmer-Wohnung mit Loggia in der Erzherzog-Karl-Straße ist ein attraktives Investment in den lebenswerten 22. Bezirk.

Die Wohnung (ca. 65 m²) befindet sich im 2. Obergeschoss eines modernen Neubaus aus dem Jahr 2020. Sie besticht mit der tollen ca. 6 m² großen südwestseitigen, sonnigen Loggia.
Die begehrte Lage sichert hervorragende Perspektiven für eine nachhaltige Wertsteigerung.

Die Ausstattungs-Highlights:
- Kunststoff-Alu-Fenster mit 3-fach-Isolierverglasung
- Innentüren aus Holz und einbruchshemmende Wohnungseingangstüren
- Parkettböden in Eiche Landhausdiele CHALE 190
- Feinsteinzeug-Fliesen im Format 30 × 60 cm
- Sanitärmöbel von LAUFEN und Armaturen von GROHE
- Digitale Videogegensprechanlage
- Elektrische, außenliegende Raffstores an allen Fenstern
- Wasser- und Stromanschlüsse auf allen Balkonen und Terrassen
- Hochwertige Steinbeläge auf sämtlichen Außenflächen
- Luftwärmepumpe mit Fußbodenheizung
- Kinderwagen- und Fahrradabstellraum
- Großzügige Tiefgarage mit E-Ladevorbereitung
- Aufzug in alle Stockwerke
- Klimaanlage im 2. Dachgeschoss installiert, im 1. Dachgeschoss vorbereitet
- Modernes Wohnkonzept für höchste Ansprüche an Komfort, Design und Nachhaltigkeit

Die Lage-Highlights:
- Buslinien 26A und 94A (3 Gehminuten)
- Straßenbahnlinie 25 (4 Gehminuten)
- Bahnhof Erzherzog-Karl-Straße (5 Gehminuten)
- Supermarkt (2 Gehminuten)
- Otto-Affenzeller-Park (3 Gehminuten)
- Lagerwiese Rehlacke / An der unteren Alten Donau (5 Minuten mit dem Rad)
- Zahlreiche Gastronomieangebote

Der Kaufpreis für diese in ausgezeichneter Lage und Infrastruktur befindliche Eigentumswohnung beträgt Euro 449.900,-.
Der Anlegerpreis für diese in ausgezeichneter Lage und Infrastruktur befindliche Eigentumswohnung beträgt Euro 415.500,-.

Vereinbaren Sie noch heute einen Besichtigungstermin und lassen Sie sich von dieser besonderen Immobilie verzaubern. Diesbezüglich freuen wir uns über Ihre geschätzte Anfrage per Mail.

Tipp: Die gesamte Anlage wird gerade parifiziert und abverkauft. Fragen Sie uns nach weiteren Objekten bzw. Paketangeboten!

Wir möchten darauf hinweisen, dass unsere Antwort möglicherweise in Ihrem Spamordner landen könnte. Bitte kontrollieren Sie diesen, wenn Sie keine Rückmeldung auf Ihre Anfrage erhalten haben.

Wir freuen uns auf Ihre Anfrage und einen gemeinsamen Besichtigungstermin!

Ausstattungs­beschreibung

NEUBAUPROJEKT EHK 100
- 34 Wohneinheiten aufgeteilt auf zwei Häuser
- großzügige Freiflächen - Balkone, Terrasse und Eigengärten
- Grundrisse mit Flächen von 30m² - 131m²
- Massivbauweise mit Vollwärmeschutzfassade
- Modernes Wohnkonzept für höchste Ansprüche an Komfort, Design und Nachhaltigkeit
- Attraktive Freiflächen mit Blick auf Teich und Parkanlage
-14 hauseigene Garagenplätze mit Vorbereitung für E-Ladestation

Lage und Verkehrs­anbindung

Hier trifft Stadtleben auf Natur! Zentral im 22. Bezirk gelegen, überzeugt die Lage durch beste Infrastruktur, kurze Wege zu Einkaufsmöglichkeiten und Schulen sowie schnelle Anbindung an U-Bahn und Autobahn. Grünflächen und die Donauinsel laden in wenigen Minuten zu Erholung und Freizeit ein.

Grundriss

Fakten

Objektnummer:
247/21911
Objekttyp:
Wohnung
Wohnfläche:
70,71 m²
Zimmer:
3
Badezimmer:
1
Toilette:
1
Baujahr:
2020/Neubau
Neubau:
Ja
Verfügbarkeit:
Verfügbar

Preisdetails

Kaufpreis:
415.500,00 €
Kaufpreis/m²
5.876,11 €
Preisinfos:
GrESt 3,5% + Grundbucheintragung 1,1% des Gesamtkaufpreises /Vertragserrichtung 1,5% + Barauslagen, Beglaubigungs-, ggf. Treuhandkosten bei Finanzierung +USt. (Mag. Teodora Aurora Vrancean, M.P.S. / Provision 3% +USt. d…
Vermittlungsprovision:
Ja
Provision:
3%

Ausstattungen

Boden:
Parkett
Fahrstuhl
Abstellraum
Fußbodenheizung

Energieeffizienz

HWB:
27,8 kWh/(m²*a)
HWB Klasse:
B
fGEE:
0,77
fGEE Klasse:
A

Ansprech­partner

Melanie Eiblthauer

Melanie Eiblthauer

Vertrieb