Aussen
Terrasse
Küche
Wohnzimmer
Zimmer oben
VZ
VZ 1
WR zur Galerie
Wohn + Küchennische
Galerie
SZ unten
Bad
WC
Terrasse 1
Ausblick Ter.

3-Zimmer-Maisonette im Dachgeschoss mit Galerie und Terrasse - Nähe U4 Meidling

1120 Wien | Wien 12., Meidling | Wien

Beschreibung


Zum Bezug nach Absprache steht diese charmante 3-Zimmer-Maisonette mit Terrasse in der Ruckergasse 20 im 12. Bezirk, für Sie bereit.

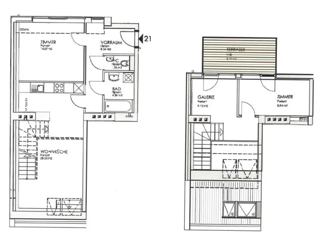
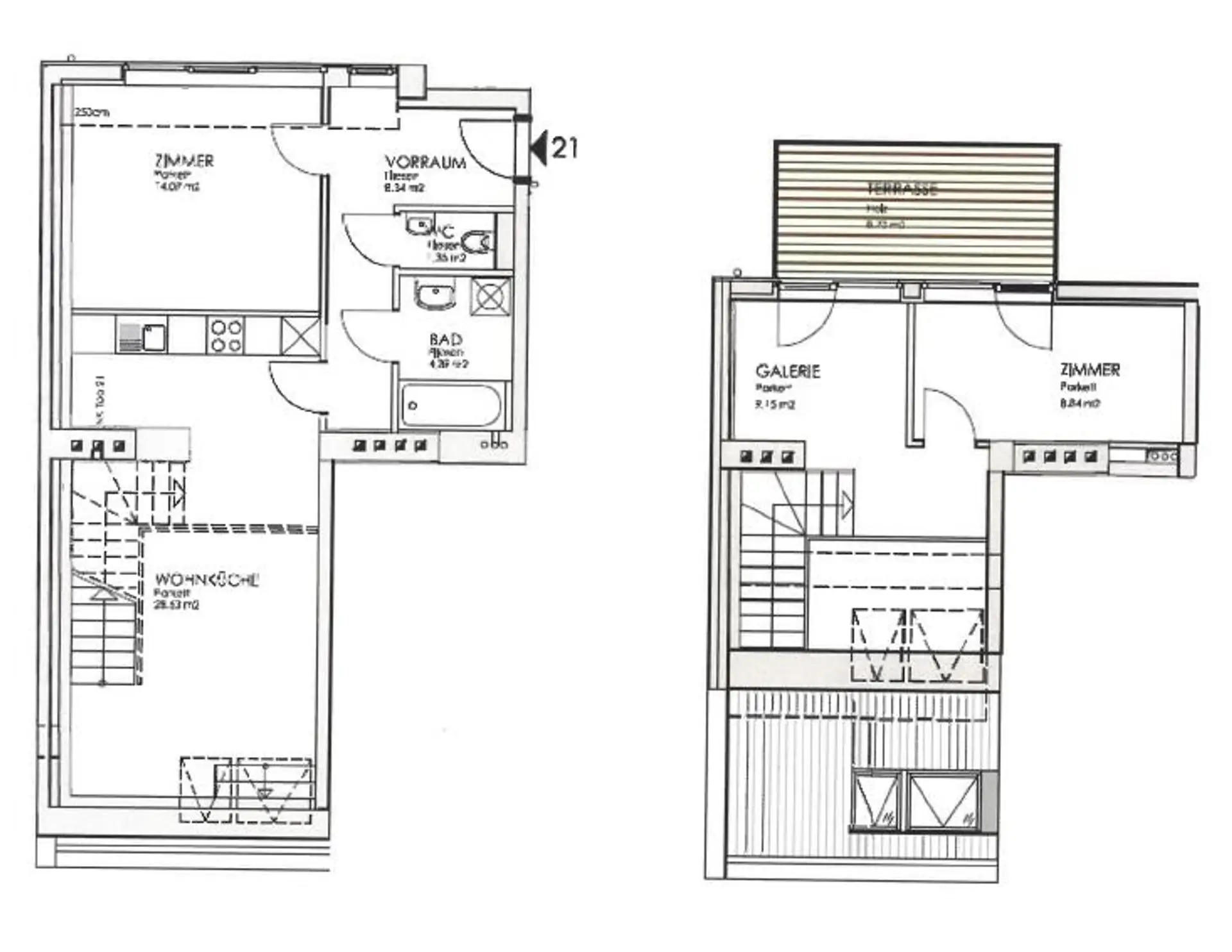
Die ca. 75 m² große Wohnung befindet sich im Dachgeschoss-Ausbau, eines sanierten Gründerzeithausesund gliedert sich in einen Vorraum, eine Wohnküche, zwei Zimmer, eine Galerie mit Zutritt zur Terrasse, ein Badezimmer und eine separate Toilette.

Einige Highlights:

- gut durchdachte Raumaufteilung
- voll ausgestattete, moderne Küchenzeile
- ca. 9 m² große Terrasse
- optimale öffentliche Anbindungen (U4, Buslinie 7A, 9A, 10A und 63A)
- nah zum Theresienbad, Fußgängerzone Meidlinger Hauptstraße und Meidlinger Markt
- Top Einkaufsmöglichkeiten, Restaurants und Cafés "„ums Eck“

Selbstverständlich stehen sowohl Fernseh- als auch Internetanschluss sowie Lift und ein Kellerabteil zur Verfügung.

Der monatliche Gesamtmietzins dieser Wohnung beläuft sich auf Euro 1.616,15 inklusive Betriebskosten, Lift und Umsatzsteuer.

Die Heiz- und Warmwasserversorgung erfolgt per Fernwärmeheizung und wird verbrauchsabhängig abgerechnet.
Die Kosten sind nicht im Mietpreis enthalten.

Per Telefon werden keine Termine vergeben! Wir bitten Sie, ausschließlich das Kontaktformular der Immobilienplattformen für Anfragen zu nutzen. Nach Erhalt unserer E-Mail antworten Sie bitte auf dieses E-Mail mit Ihrem Besichtigungswunsch.

Wir möchten darauf hinweisen, dass unsere Antwort möglicherweise in Ihrem Spamordner landen könnte.

Wir freuen uns auf Ihre Anfrage und einen gemeinsamen Besichtigungstermin!

Ausstattungs­beschreibung

Mietdauer: 5 Jahre befristet,
Mindestmietdauer: 1 Jahr Kündigungsverzicht
und 3 Monate Kündigungsfrist,
Liftkosten € 37,02 inkl. USt. in den BK enthalten

Lage und Verkehrs­anbindung

Zentrale Lage im 12. Bezirk mit sehr guter Infrastruktur. U-Bahn, Bus und Bahnhof Meidling rasch erreichbar. Einkaufsmöglichkeiten, Gastronomie und Schulen in Gehdistanz. Ruhige Wohngegend mit Nähe zu Grünflächen.

Grundriss

Fakten

Objektnummer:
247/04861
Objekttyp:
Wohnung
Terrasse:
1
Terrassenfläche:
8,7 m²
Wohnfläche:
74,77 m²
Zimmer:
3
Badezimmer:
1
Toilette:
1
Baujahr:
2013/DG-Ausbau
Verfügbarkeit:
Verfügbar

Preisdetails

Gesamtmiete:
1.616,15 €
Nettomiete:
1.196,32 €
Betriebskosten netto:
272,91 €
Umsatzsteuer:
146,92 €
Preisinfos:
Abwicklung und Durchführung Mietvertrag: € 375,-
Kaution:
4.850,00 €

Ausstattungen

Boden:
Parkett
Fahrstuhl
Fernwärme

Energieeffizienz

HWB:
52 kWh/(m²*a)
HWB Klasse:
C
fGEE:
0,96
fGEE Klasse:
B

Ansprech­partner

Krenek Helene

Krenek Helene

Vertrieb
Mietanbot abgeben